Beschrijving
Op een uitstekende zichtlocatie aan de Hallenstraat op bedrijventerrein De Sleutel in Bladel bieden wij twee moderne bedrijfsruimtes te huur aan. De units maken deel uit van het representatieve bedrijfsverzamelgebouw HALL20, een nieuwbouwproject bestaande uit 20 hoogwaardige bedrijfsunits. Dankzij de ligging nabij de N284 en de A67 zijn Eindhoven, Tilburg en Turnhout uitstekend bereikbaar.
De bedrijfsruimtes zijn ideaal voor productie, opslag, distributie of lichte bedrijfsactiviteiten en zijn door hun functionele indeling ook geschikt voor combinatiegebruik met kantoor of showroom.
Indeling
Hallenstraat 5 en 5a te Bladel
Op bedrijventerrein De Sleutel in Bladel bieden wij Unit 9 en 10 te huur aan: beide moderne, multifunctionele bedrijfsruimtes verdeeld over twee verdiepingen op een prachtige zichtlocatie.
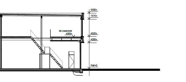
De begane grond ) beschikt over een gevlinderde betonnen vloer met een draagvermogen van 1.000 kg/m² en is uitermate geschikt als werkplaats, opslag- of productieruimte. Hier bevindt zich tevens een standaard toiletruimte met fontein.
De verdieping, uitgevoerd met een betonnen kanaalplaatvloer (350 kg/m²), kan uitstekend gebruikt worden als kantoor, showroom of extra opslagruimte.
De wandafwerking bestaat uit scheidingswanden van gasbetonpanelen (ca. 15 cm dik), standaard casco en onbehandeld opgeleverd. Hierdoor kunnen huurders de ruimte eenvoudig naar eigen wens afwerken, bijvoorbeeld met schilderwerk of binnenafwerking.
De unit is voorzien van een grote overheaddeur (H 4,00 m x B 3,18 m), een separate loopdeur, voorbereiding voor glasvezel en uitstekende isolatie. Buiten zijn 3 eigen parkeerplaatsen direct voor de unit beschikbaar.
Standaard is er geen elektrische installatie, water, verwarming. Elektra-aansluiting 3 x 25amp + Water 1,5 Qn worden in de meterkast opgeleverd.
Daarnaast zijn in deze units diverse voorbereidingen en extra voorzieningen aangebracht die het gebruiksgemak en comfort aanzienlijk verhogen. Zo zijn er vloerverwarmingsslangen met verdeelunit aangebracht in de begane grondvloer en is er een mechanisch ventilatiesysteem geïnstalleerd voor een prettig binnenklimaat in het kantoor. De meterkast is voorzien van een complete groepenkast met aansluitmogelijkheden voor toekomstig gebruik, waaronder loze leidingen en voorbereidingen voor zonnepanelen en een warmtepompinstallatie. Verder is er een voorbereiding voor een pantry op de verdieping aangebracht, evenals een toilet op zowel de begane grond als de eerste verdieping.
Deze uitbreidingen zorgen ervoor dat de units direct functioneel inzetbaar zijn en eenvoudig verder kunnen worden ingericht naar de wensen van de huurder.
De verhuurder is bereidt om de hal te voorzien van nadere afwerking tegen een toeslag op de huurprijs of het overeen komen van een verlengde looptijd. In overleg kunnen hier afspraken over gemaakt worden.
Kenmerken Hallenstraat 5 (unit 9):
- Hoeklocatie + zichtlocatie
- Begane grond (ca. 57 m²)
- Eerste verdieping (ca. 57 m²)
- Totale oppervlakte ca. 114 m²
- Vrije hoogte ca. 4 meter
- Gevlinderde betonvloer (1.000 kg/m²)
- Betonnen verdiepingsvloer (350 kg/m²)
- Grote overheaddeur (niet elektrisch) en separate loopdeur
- Uitstekende isolatie
- 3 bijhorende parkeerplaatsen
- Water/licht voor eigen rekening
- Per december '25 beschikbaar
- Minimale huurtermijn: in overleg, voorkeur 3 + 2 jaar
- Huurprijs €1.065,- per maand excl. BTW
- Waarborgsom 3 maanden huur
Hallenstraat 5a (unit 10)
- Zichtlocatie
- Begane grond (ca. 56 m²)
- Eerste verdieping (ca. 56 m²)
- Totale oppervlakte ca. 112 m²
- Vrije hoogte ca. 4 meter
- Gevlinderde betonvloer (1.000 kg/m²)
- Betonnen verdiepingsvloer (350 kg/m²)
- Grote overheaddeur (niet elektrisch) en separate loopdeur
- Uitstekende isolatie
- 3 bijhorende parkeerplaatsen
- Water/licht voor eigen rekening
- Per december '25 beschikbaar
- Minimale huurtermijn: in overleg, voorkeur 3 + 2 jaar
- Huurprijs € 1.065,- per maand excl. BTW
- Waarborgsom 3 maanden huur
Indien gewenst is het mogelijke beide units te verbinden en zo één bedrijfsruimte te creëren. Informeer hiervoor naar de (bouwkundige) mogelijkheden.
Heeft u interesse in deze bedrijfsruimte? Stuur ons dan een e-mail met uw naam, uw bedrijfsgegevens en telefoonnummer.
Wij nemen dan contact met u op om de mogelijkheden te bespreken.
Plattegronden
Schermafbeelding 2025-10-16 122210.png
Schermafbeelding 2025-10-16 142314.png
Schermafbeelding 2025-10-16 122414.png
Schermafbeelding 2025-10-16 122434.png
Schermafbeelding 2025-10-16 135648.png
Schermafbeelding 2025-10-20 112318.png