| Adres: | Savoor 3A, 5541 SK Reusel |
| Prijs | € 2.850,- /mnd |
| Type object | Bedrijfshal |
| Perceeloppervlakte | 500 m² |
| Totale VVO | 426 m² |
| In units vanaf | 280 m² |
| Aanvaarding | Direct |
| Status | Nieuw in verhuur |
Te huur: Savoor 3A te Reusel Op het hoogwaardige en ruim opgezette bedrijvenpark 'De Kleine Hoeven' is deze nieuw gebouwde bedrijfshal te huur. Interesse om in deze prachtige, nieuwe hal uw bedrijf te vestigen? Neem dan contact met ons op. We vertellen u graag over de mogelijkheden!
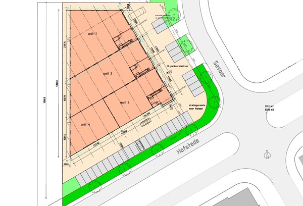
Savoor 3A (Uniek door zichtlocatie) Deze bedrijfshal is gelegen op de hoek van de Savoor en de Hofstede en valt door de uitstekende zichtlocatie direct op vanaf de weg. Het kantoor is aan beide zijdes ontworpen en biedt een mooi uitzicht over het bedrijventerrein. De hal is voorzien van een warmtepomp, een eigen 3 x 80A stroomaansluiting, een pantry en een toilet. Het buitenterrein wordt gezamenlijk gebruikt, waarbij Savoor 3A de beschikking heeft over 7 eigen parkeerplaatsen. De strook verhard terrein achter de hal kan, in overleg, in gebruik worden genomen zolang deze als vluchtweg toegankelijk blijft. Vanaf de Savoor zorgt de inrit voor een rechte en directe toegang tot de overheaddeur. De hal heeft een prettig formaat van circa 13 meter breed en 24 meter diep en beschikt over een vrije hoogte van circa 7 meter, wat zorgt voor veel gebruiksmogelijkheden. De verhuurder is bereidt om de hal te voorzien van nadere afwerking tegen een toeslag op de huurprijs of het overeen komen van een verlengde looptijd. In overleg kunnen hier afspraken over gemaakt worden. Oppervlakten: - ca. 280 m² BVO bedrijfshal - ca. 53 m² BVO kantoor begane grond - ca. 93 m² BVO opslagruimte verdieping Huurprijs: € 2.850,- per maand / € 34.200,- per jaar (excl. btw ) Heeft u interesse in deze bedrijfsruimte? Stuur ons dan een e-mail met uw naam, uw bedrijfsgegevens en telefoonnummer. Wij nemen dan contact met u op om de mogelijkheden te bespreken.
De volgende uitgangspunten houden wij aan bij het overeenkomen van huurafspraken: - Staat van oplevering: casco conform de staat van oplevering - Servicekosten: nader te bespreken (beperkt, enkel voor terreinonderhoud) - Borgsom: drie maanden de ingangshuur + de hierop van toepassing zijde btw - Huurperiode: 5 jaar + 5 jaar - Verlengperiode: telkens 5 jaar - Opzegtermijn: 12 maanden - Indexering: Jaarlijks vanaf 1 jaar na ingangsdatum conform opgave CBS - Oplevering: op korte termijn mogelijk - Energielabel: nieuwbouwkwaliteit, label niet van toepassing (bedijfsmatig) - Huurprijs inclusief algemeen gebruik parkeerterrein waaronder 7 eigen parkeerplaatsen. - Optielijst voor meerwerkopties beschikbaar. *** De huurovereenkomst wordt opgemaakt in een ROZ model. Op het moment van oplevering wordt een proces-verbaal van oplevering opgemaakt welke als bijlage bij de huurovereenkomst zal worden gevoegd. Gedurende het verhuurproces kunnen wij u vragen uw bedrijfscijfers en/of uw ondernemingsplan te overhandigen. Naar iedere huurder voeren wij een uitgebreide controle uit om de integriteit vast te stellen. Aanvullende vragen neem contact op met ons kantoor of direct onze makelaar Bas Paridaans. ***' Het volgende bestemmingsplan is van toepassing: De voor 'Bedrijventerrein' aangewezen gronden zijn bestemd voor: a. de uitoefening van industriële, ambachtelijke, groothandelsbedrijven en bedrijven in transport- en distributiesector, voor zover deze bedrijven voorkomen op de ter plaatse van de aanduiding 'bedrijf van categorie 3.2' en op basis van de bij deze regels behorende lijst van bedrijfsactiviteiten of daaraan gelijk te stellen bedrijfsactiviteiten, met in achtneming van het bepaalde onder m; b. uitsluitend ter plaatse van de aanduiding 'bedrijfswoning' voor bedrijfswoning; c. faciliterende dienstverlening; d. erven; e. toegangswegen, ontsluitingswegen en in- en uitritten; f. verkeersvoorzieningen; g. parkeervoorzieningen; h. opstelplaatsen voor vrachtwagens; i. groenvoorzieningen; j. ter plaatse van de aanduiding 'onderdoorgang' mede voor natuur; k. waterhuishoudkundige voorzieningen; l. de aanleg, instandhouding en bescherming van de leidingen; m. uitgezonderd zijn bedrijven van categorie 1 op basis van de bij deze regels behorende lijst van bedrijfsactiviteiten of daaraan gelijk te stellen bedrijfsactiviteiten.
| Huurprijs | € 2.850,- per maand |
| Borg | € 10.708,- |
| Inrichting | Niet gestoffeerd |
| Inrichting | Niet gemeubileerd |
| Status | Nieuw in verhuur |
| Aanvaarding | Direct |
| Aangeboden sinds | Woensdag 28 januari 2026 |
| Type object | Bedrijfshal |
| Soort bouw | Nieuwbouw |
| Bouwperiode | 2024 |
| Perceeloppervlakte | 500 m² |
| VVO | 280 m² |
| In units vanaf | 280 m² |
| Kantoor oppervlakte | 146 m² |
| Totale verhuurbare vloeroppervlakte | 426 m² |
| Vrije hoogte | 7 m. |
| Lokale voorzieningen | Bank op 4000 meter tot 5000 meter Geldautomaat op 2000 meter tot 3000 meter Recreatie op 4000 meter tot 5000 meter Restaurant op 2000 meter tot 3000 meter Winkel op 2000 meter tot 3000 meter Supermarkt op 2000 meter tot 3000 meter |
| Bereikbaarheid | Bushalte op 2000 meter tot 3000 meter Busknooppunt op 2000 meter tot 3000 meter Metrohalte op 5000 meter of meer Metroknooppunt op 5000 meter of meer Treinstation op 5000 meter of meer Trein voorhalte op 5000 meter of meer Afrit van de snelweg op 5000 meter of meer Tramhalte op 5000 meter of meer Tramknooppunt op 5000 meter of meer |
| Aantal parkeerplaatsen | 7 |
| Uitrusting | Betonvloer Overheaddeuren Toilet |
| Heeft een kantoor | Ja |
| Kadastrale aanduiding | Reusel-De Mierden F 1709 |
| Perceeloppervlakte | 500 m² |
| Omvang | Deel perceel |
| Eigendomsituatie | Eigen grond |