Beschrijving

Wat zou het heerlijk zijn om te wonen in deze prachtige wijk aan de rand van Bergeijk! En dan hebben we nu ook nog de ultieme kans voor jou: huisnummer 11 aan het Landjuweel! 

Duurzaamheid staat hier voorop: 11 zonnepanelen (2020), een hybride warmtepomp (oktober 2024) en energielabel A. Check, check, dubbel check!

Dit is hét huis waar je van gaat stralen! Topgelegen, ruim van binnen met 124 m² woonoppervlakte, een inpandige garage van 19 m² én een fijne privacy biedende tuin met een schitterende Douglas terrasoverkapping (2024). Binnen is het puur genieten! Een lichte, ruime leefruimte met een open maatwerkkeuken (2019), een fantastische tuinkamer waar binnen en buiten helemaal in balans zijn, drie gezellige slaapkamers op de verdieping, een frisse badkamer én genoeg bergruimte om alles netjes op te bergen.

Zie je jouw naam graag staan op het naambordje bij de voordeur? En voel je de verhuiskriebels al opkomen bij het bekijken van de foto’s? We begrijpen je 100%! Kom dan eerst even langs voor een bezichtiging en wie weet is dat naambordje snel besteld.

Indeling

Wat een heerlijke binnenkomer in de wijk. Rustig gelegen, met veel groen en diverse speelvoorzieningen voor de kinderen in de directe omgeving. De wijk is bovendien vanuit meerdere kanten goed bereikbaar. En minstens zo belangrijk: de verbindingswegen richting Eindhoven en Veldhoven liggen hier vrijwel om de hoek.

De straat is ruim opgezet en biedt volop parkeergelegenheid voor de deur. Daarnaast parkeer je je auto eenvoudig op eigen terrein en loop je via de onderhoudsvriendelijke voortuin zo naar de voordeur. Kom je met ons mee naar binnen?

Hal 
Je komt binnen in de hal, waar de houten vloer direct zorgt voor een warme en uitnodigende binnenkomer. Deze vloer loopt naadloos door naar de leefruimte, waar we je zo meteen nog veel meer over vertellen.

Maar eerst blijven we nog even in de hal. Hier bevindt zich de moderne toiletruimte, afgewerkt met een antraciet betegelde achterwand, lichte wandtegels, een wandcloset, een fonteintje met onderkast en mechanische ventilatie. Daarnaast vind je hier de garderoberuimte, de provisiekast onder de trap, de meterkast en de trapopgang naar de eerste verdieping.

Woonkamer 
En dan de woonkamer… wat een heerlijke plek! Ruim opgezet, met een fijne verbinding met de keuken en volop mogelijkheden qua indeling. Wat direct opvalt bij binnenkomst, is het prettige licht dat via het grote raam aan de voorzijde rijkelijk naar binnen stroomt.

De basis van deze ruimte is top: de houten vloer zorgt voor een warm en sfeervol karakter, terwijl de strak gestuukte wanden en het plafond een moderne, rustige uitstraling geven.

Hier is alle ruimte om een royale zithoek te creëren waar je heerlijk kunt ontspannen. De elektrische haard wordt ter overname aangeboden en draagt bij aan een warme, sfeervolle ambiance.

De indeling is bovendien speels én praktisch. Richting de keuken is er volop plek voor een grote eettafel, ideaal om uitgebreid te tafelen met vrienden en familie.

Keuken 
De echte eyecatcher van de woning is zonder twijfel de strakke keuken. Een plaatje om te zien! Aan de achterzijde bevindt zich deze moderne, open keuken in een praktische L-opstelling (2019). De hoogglans witte fronten zorgen voor een frisse en tijdloze uitstraling, terwijl het kunststof werkblad en de bovenkastjes volop werk- en bergruimte bieden.

Deze moderne Bruynzeel keuken is uitgerust met diverse inbouwapparatuur, waaronder een Siemens 5-pits inductiekookplaat, afzuigkap, koelkast en combi-magnetron. Tijdens het koken blijf je moeiteloos in contact met je gezin of gasten aan de eettafel. Gezelligheid gegarandeerd!

Vanuit de keuken kijk je al richting de volgende verrassing van dit huis…

Tuinkamer 
Wat een ruimte, wat een lichtinval en wat een sfeer! Deze drie aspecten omschrijven perfect het gevoel in de ruim opgezette tuinkamer aan de achterzijde van de woning. Zonder twijfel is dit één van de absolute pluspunten van het huis.

De royale aanbouw voelt als een volwaardige tweede woonkamer en biedt ongekend veel mogelijkheden. De antracietkleurige tegelvloer met vloerverwarming zorgt voor optimaal comfort, terwijl de lattenwand een modern en warm accent toevoegt. Het strak gestuukte plafond met inbouwspots en de fraaie lichtstraat met HR++ glas zorgen voor een luxe uitstraling en een zee aan daglicht.

De grote aluminium schuifpui vormt de perfecte overgang naar de tuin, waardoor binnen en buiten naadloos in elkaar overlopen. Op zonnige dagen zet je de pui open en geniet je van het ultieme binnen-buitengevoel. Momenteel is deze ruimte ingericht als tv-kamer en comfortabele loungeplek.

Maar denk bijvoorbeeld ook aan een speelkamer, werkruimte, atelier of zelfs een eetkamer. De mogelijkheden voor deze ruimte zijn eindeloos.

Bijkeuken
De pluspunten van deze woning blijven zich opstapelen! Want achter de glazen tussendeur bevindt zich nóg een aangename verrassing: de multifunctionele bijkeuken en daar word je gegarandeerd blij van.

Deze ruimte is verrassend praktisch ingericht met een wastafel, kast en een kastombouw met aansluitingen voor de wasmachine en droger. Daarnaast is de bijkeuken neutraal afgewerkt en voorzien van een nette tegelvloer.

Ook is er volop extra bergruimte voor je voorraad, schoonmaakspullen of hobbybenodigdheden. Superhandig!

Garage
Een fijne bijkomstigheid is de inpandig bereikbare garage van maar liefst 19 m². Deze goed bemeten ruimte is uitgerust met elektra, een elektrische sectionaaldeur en een in 2024 gelegde laminaatvloer. In datzelfde jaar is hier tevens een elektrische warmtepomp geïnstalleerd, die ook kan koelen. Ideaal voor extra comfort tijdens warme zomerdagen.

De garage is multifunctioneel en leent zich uitstekend als bergruimte, praktische klusplek of voor het stallen van fietsen en het netjes opbergen van gereedschap.

Tijd om boven te kijken, want de eerste verdieping staat op ons te wachten!

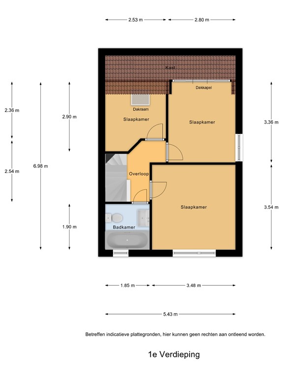
Eerste verdieping

Eenmaal boven voelt het meteen goed. Vanaf de overloop heb je toegang tot drie slaapkamers, de badkamer aan de voorzijde van de woning én de vaste trap naar de zolder. De gehele verdieping is in 2020 voorzien van een nette laminaatvloer, wat zorgt voor rust en een mooie eenheid. 

Laten we snel een kijkje nemen in de slaapkamers.

Slaapkamers
De sfeervolle master bedroom is heerlijk ruim opgezet en biedt volop comfort aan de voorzijde van het huis. Dankzij de aluminium kozijnen met HR++ beglazing is de kamer goed geïsoleerd en aangenaam licht. Het handmatige rolluik zorgt daarnaast voor extra privacy en draagt bij aan een goede nachtrust.

De kamer is afgewerkt met een nette laminaatvloer en een smaakvol kleurenpalet, waardoor je deze eenvoudig naar eigen wens kunt inrichten en voorzien van jouw persoonlijke finishing touch.

De tweede slaapkamer bevindt zich aan de achterzijde en is voorzien van een dakkapel met houtenkozijnen voorzien van HR-beglazing, wat zorgt voor extra ruimte en een prettige lichtinval. Achter het knieschot is praktische bergruimte aanwezig, ideaal voor het netjes opbergen van spullen. Het zijraam is uitgerust met een rolluik, wat bijdraagt aan zowel comfort als verduistering.

De derde kamer is strak en modern afgewerkt met gestuukte wanden en een plafond, wat direct een verzorgde indruk geeft. Het dakraam zorgt voor een fijne natuurlijke lichtinval en is voorzien van een elektrisch rolluik voor extra gemak. Deze veelzijdige ruimte is perfect te gebruiken als kinder-, werk- of hobbykamer.

Badkamer 
Compact, netjes en functioneel! Dat is zonder twijfel deze aan de voorzijde gesitueerde badkamer. Hier geniet je van een ligbad met douchevoorziening, uitgerust met een hand- en regendouche en een praktisch spatscherm. Ideaal voor zowel een snelle douche als een heerlijk moment van ontspanning in bad. Daarnaast beschikt de ruimte over een wastafelmeubel met spiegelkast en een toilet.

Het aanwezige raam zorgt voor prettig daglicht en natuurlijke ventilatiemogelijkheden, terwijl de radiator bijdraagt aan een aangenaam binnenklimaat. Kortom, een nette badkamer waar je direct gebruik van kunt maken.

Tweede verdieping

Aan ruimte geen gebrek, dat kunnen we wel zeggen! Middels een vaste trap bereik je de open zolderruimte. Deze is momenteel ingericht als praktische bergzolder, voorzien van tapijt en volop bergruimte achter de knieschotten aan beide zijden.

Hier bevinden zich tevens de cv-ketel (Remeha, 2013) en de omvormer van de zonnepanelen (11 stuks). Het dakvenster zorgt daarbij voor prettig natuurlijk daglicht in de ruimte.

Tuin

Achtertuin
Zet de schuifpui vanuit de tuinkamer maar open… en ja hoor: in deze tuin is het volop genieten! De tuin is verzorgd aangelegd, biedt veel privacy en straalt een heerlijke rust uit. Aan de achterzijde heb je bovendien geen inkijk, hoe fijn is dat!

De tuin kenmerkt zich door een mooie combinatie van gras, gevarieerde borders met onder andere planten en sierkiezel én drie sfeervolle boompjes die extra charme en structuur toevoegen aan de buitenruimte.

Ook met kinderen zit je hier perfect! Terwijl de kleintjes lekker spelen op het gras, kun jij heerlijk ontspannen onder de door de huidige eigenaar gecreëerde Douglas terrasoverkapping.

Deze fraaie overkapping nodigt uit om tot de late uurtjes te blijven zitten wanneer het weer het toelaat. Dankzij de plafondventilator en de royale afmetingen is er volop ruimte voor een grote tuintafel of een comfortabele loungeset. De ideale setting voor zomerse diners en gezellige avonden met vrienden en familie.

De twee knotbomen, de appelboom en de houten schuttingen zorgen samen voor een beschutte sfeer. En praktische details zoals een buitenkraan en afvoerputje maken het geheel compleet.

Bijzonderheden

Locatie
Voor wat betreft de locatie schiet je in de roos! Je loopt zo de Bergeijkse bossen in voor een frisse wandeling, terwijl je ook binnen circa 15 minuten in het levendige centrum van Bergeijk staat. Hier vind je alles voor de dagelijkse boodschappen én volop gezellige horecagelegenheden voor een lunch, diner of borrel.

Ook het Ploegpark, diverse speelvelden en groenvoorzieningen liggen op loopafstand. Een fijne, kindvriendelijke buurt waar kinderen vrij kunnen spelen en je volop geniet van het buitenleven.

Werk je bij ASML of op de High Tech Campus? Dan zit je hier helemaal goed. Via de uitvalswegen bereik je Veldhoven en Eindhoven snel en eenvoudig. Een ideale locatie met een perfecte mix van rust, bereikbaarheid en levendigheid!

Kenmerken 
- Bouwjaar woonhuis 1991; Tuinkamer 2013;
- Energielabel A
- Midea hybride warmtepomp (elektrisch), geplaatst eind 2024 
- Maar liefst 11 zonnepanelen aanwezig (2020)
- Gebruikersoppervlakte wonen 124 m²
- Overige inpandige ruimte 19 m²
- 210 m² perceel
- De woning is voorzien van dak-, vloer- en muurisolatie.
- Houten- en aluminium kozijnen met (HR++) isolerende beglazing
- Royale tuinkamer met lichtstraat en vloerverwarming 
- Moderne hoogglans Bruynzeel keuken (2019) 
- Garage met elektrische sectionaaldeur en nieuwe laminaatvloer (2024) 
- Privacyrijke achtertuin met Douglas houten overkapping (2024)
- Cv-ketel Remeha (2013) 
- Het woonhuis beschikt over diverse rolluiken.

Foto’s zeggen veel, maar een bezichtiging op locatie vertelt pas het hele verhaal. Zo ervaar je zelf hoe fijn de ligging is en hoe licht en ruim de woning werkelijk voelt. Bel je naar kantoor? Dan heet onze makelaar Stef je met plezier welkom en zet hij de deur voor je open!

Kenmerken