Beschrijving

Altijd al willen wonen op De Weebosch? Dit is jouw kans!

Kavel 5 op nieuwbouwproject 't Aengelag is nu in de verkoop! Deze leuke woning met drie slaapkamers is de perfecte gezinswoning. Hier woon je in een groene, rustige omgeving met alle voorzieningen binnen handbereik. De basisschool is op loopafstand en ook andere voorzieningen zijn snel bereikbaar. Bovendien wordt de woning energiezuinig en duurzaam gebouwd.

LOCATIE
Het dorp De Weebosch genoemd, maakt deel uit van de gemeente Bergeijk en ligt op een paar kilometer van de Belgische grens. In de nabije omgeving kun je heerlijk wandelen op de Cartierheide. Het dorp ligt aan meerdere fiets- en wandelknooppunten en in de buurt vind je veel terrasjes en eetgelegenheden. De Weebosch kent een rijk verenigingsleven met een tennis- en voetbalvereniging, een Carnavalsvereniging en een buurthuis waar veel activiteiten voor jong en oud worden georganiseerd. 

Het is hier heerlijk rustig en landelijk wonen met grotere plaatsen zoals Lommel (België) en Bergeijk op slechts een paar kilometer afstand. 

GEZINSWONINGEN
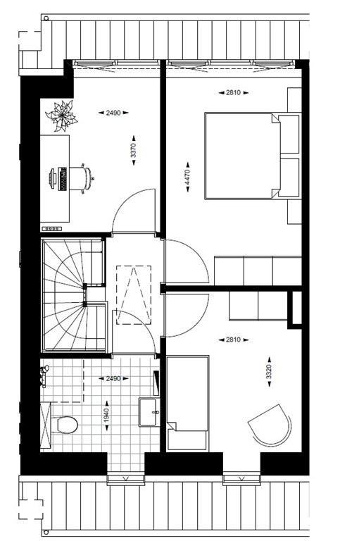
Deze woningen kenmerken zich door de lage goot en de dakkapel over de volledige breedte aan de achterzijde van de woning. Qua afmetingen zijn deze woningen identiek aan elkaar met twee ervan gespiegeld. Allemaal hebben ze drie slaapkamers en een bergzolder die toegankelijk is via een vlizotrap. Kavel 5 is gelegen op een hoek en heeft een iets breder perceel waardoor de tuin naast de woning doorloopt. 

INDELING WONING
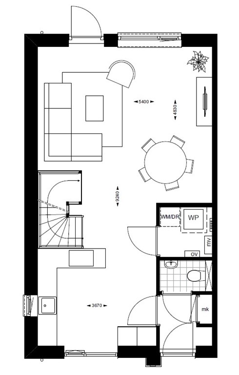
De intree van de woning bevindt zich aan de voorzijde met rechts een toiletruimte. Daarnaast vind je de installatieruimte met opstelplaats voor de wasmachine en droger vinden. De keuken is aan de voorkant van de woning. De ruime woonkamer is voorzien van een open trap naar de eerste verdieping en bied uitzicht op de prachtige achtertuin. Op de eerste verdieping bevinden zich drie slaapkamers, een badkamer met toilet en een vlizotrap naar de bergzolder.  

De achtertuin, gelegen op het Noordwesten, is voorzien van een houten berging. Hier kun je gemakkelijk je fiets, BBQ of andere spullen opslaan. De auto kun je gemakkelijk parkeren op één van de nabij gelegen parkeervakken. 

TECHNISCHE GEGEVENS
De woning wordt gebouwd comfort de laatste duurzaamheidseisen en is geheel gasloos! Verwarmen gebeurt met een lucht-water warmtepompinstallatie aangesloten op vloerwarming , warm water wordt voorzien middels een e-boiler van 180 liter, zonnepanelen worden geplaatst conform de BENG berekening welke ervoor zorgt dat de woning een zeer fraai A+++ label zal ontvangen. Voor de verder materialisering en afwerking van de woning van bijvoorbeeld de vloeren, wanden en plafonds hebben wij een technische omschrijving beschikbaar. Deze omschrijving geeft volledige duidelijkheid hoe jouw nieuwe woning opgeleverd zal worden. 

OPTIESMOGELIJKHEDEN
Met het interactieve woonmenu stel jij jouw droomwoning geheel naar wens samen. Er is een 3d module beschikbaar waar je alle opties kunt bekijken en ook direct de prijzen hiervan kunt zien. Zo zorg je ervoor dat de woning helemaal naar wens en sleutel-klaar wordt afgewerkt en je enkele de verhuisdozen nog maar uit hoeft je pakken. 

Voorbeeldopties:
- Het plaatsen van een erker aan de zijgevel
- Uitbouw van 1.20m of 2.40m
- Verschillende indelingen van de achtergevel 
- Het plaatsen van een lichtstraat
- Extra trapkast
- Afwerking zoals stucwerk, schilderwerk, vloerafwerking, tuininrichting
- Etc. etc. 

Liever alles helemaal zelf doen? Dat kan! Er is zelf een mogelijk om de woning Casco te laten opleveren tegen een minderprijs. Je volledige afwerking heb je dan na de bouwkundige oplevering in eigen hand. 

Benieuwd naar wat er nog meer mogelijk is? Neem dan contact met ons op, wij vertellen je graag meer over deze prachtige woningen!

Kenmerken