Beschrijving

Park Looburgh – Nu in verkoop! 

BERGEIJK
De Brabantse grensregio ‘De Kempen’, met haar overweldigende bossen, heide en vennen, is ongetwijfeld één van de mooiste natuurrijke en recreatieve woonomgevingen van Nederland. Daar, letterlijk middenin, ligt het sfeervolle en bruisende dorp Bergeijk. En op circa 20 autominuten treft u de voorzieningen van de economisch meest welvarende regio van Nederland, namelijk: Brainport Eindhoven.

PARK LOOBURGH 
Op deze unieke locatie, aan de rand van Bergeijk, verrijst ‘Park Looburgh’. Deze woonbuurt, met een buitengewoon mooie ‘modern classic’ architectuurstijl, bestaat uit totaal 40, zeer duurzame woningen, die in de vorm van een hof rondom een gemeenschappelijke parktuin worden gesitueerd. De parktuin is het prachtige uitzicht aan de voorzijde van de woningen en appartementen en wordt volledig aangelegd met bomen, bloeiende heesters en groene hagen. Daar doorheen lopen slingerende wandelpaden die rust en ruimte bieden voor recreatie; een gezellig praatje met uw buren, of een spelletje jeu de boules op een daarvoor speciaal aangelegde baan. De Parktuin, van ca 4300 m2, heeft bovendien sfeervolle doorsteekjes naar de buitenzijde van de buurt die veilig omzoomd wordt door de oevers van brede waterpartijen (gracht) en de aangrenzende reeds bestaande Natuurtuin. De parktuin blijft eigendom van de parkbewoners en is zodoende semi-openbaar. 

Park Looburgh is als het ware een geborgen, kleinschalige ‘burcht’, letterlijk ingesloten door het landschap. Zie daar de naam ‘Park Looburgh’ verklaard. Het project is opgebouwd uit betaalbare (huur)woningen, een chique Appartementenvilla én royale, levensloopbestendige (dus eventueel gelijkvloerse) Parkwoningen, anticiperend op het ouder worden. 

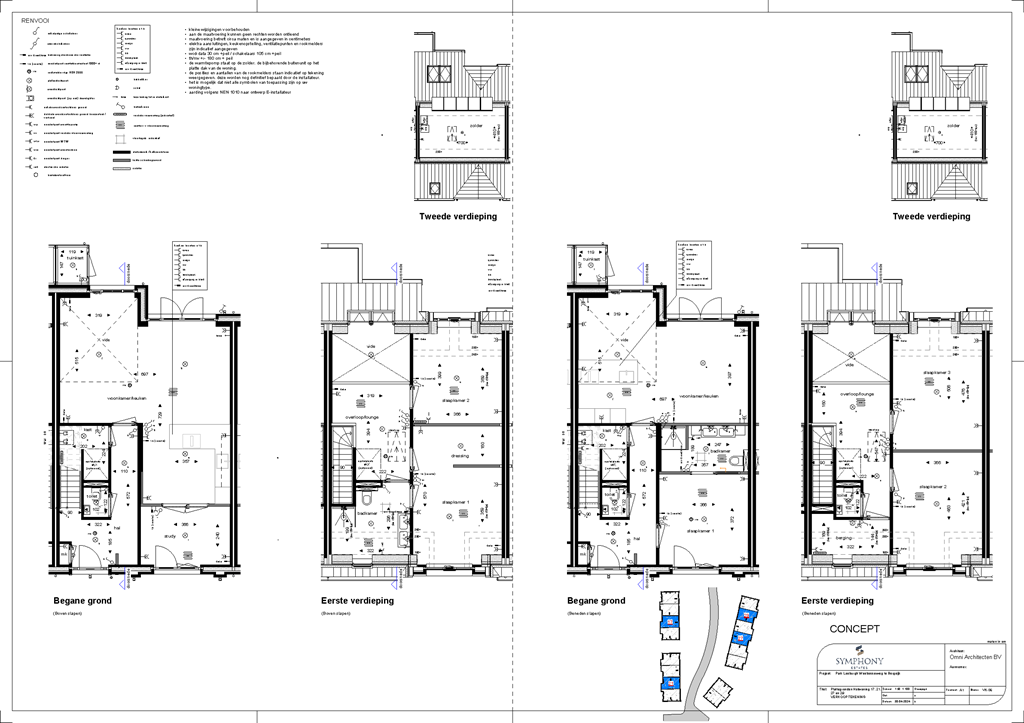
LEVENSLOOPBESTENDIGE PARKWONINGEN: 
De 16 Parkwoningen van circa 155 m2 hebben door de breedte van de woning grote leefruimtes beneden én zijn daardoor levensloopbestendig ontwikkeld. Dat betekent dat ze in basis gelijkvloers zijn, met de mogelijkheid voor een slaap- en badkamer op de begane grond én een vide in de woonkamer (in plaats van een extra slaapkamer boven) voor een ongekende ruimtebeleving en daglichttoetreding. Tevens is in de plattegrond al (bouwkundig) rekening gehouden met de mogelijkheid voor een privé huislift, indien de noodzaak daarom vraagt. Maar, de mogelijkheid is er ook de vide weer eenvoudig te verruilen voor een 3de slaapkamer op de eerste verdieping, waarmee de woning (weer) geschikt is voor gezinnen. De tuinen van de Parkwoningen liggen zowel op de oost als westzijde voor dus ochtend én avondzon.

BOVENDIEN IS DE VRIJ OP NAAM PRIJS:
- inclusief een verrekenpost van keukens, tegels en sanitair van ongeveer € 40.000,-- (incl. BTW);
- inclusief glad gestucte plafonds, dus geen spuitwerk met V-naden;
- inclusief houten deurkozijnen, dus geen stalen deurkozijn met bovenlicht;
- inclusief stompe designdeuren met mooi beslag, dus geen opdekdeuren.

SYMPHONY ESTATES
Park Looburgh is een project van Symphony Estates. Heeft u interesse in deze unieke woningen? Bezoek de projectwebsite www.parklooburgh.nl voor meer informatie en om u in te schrijven, of neem direct contact op met de makelaar.

Park Looburgh – Welkom in uw nieuwe thuis!

Bijzonderheden

Kenmerken:

- Perceeloppervlakte: 150 m².
- Soort bouw: Nieuwbouw.
- Externe bergruimte: 7 m², ideaal voor opslag en het stallen van fietsen.
- Bouwlagen: 3 verdiepingen, met een ruime en lichte indeling.
- Aantal kamers: 4 kamers, waaronder een royale woonkamer en drie ruime slaapkamers.
- Tuin en buitenruimtes:
- Privé buitenruimte vóór de woning: Terras van 14 m², gelegen op het westen, met uitzicht over de parktuin.
- Privé buitenruimte achter de woning: Tuin van 30 m², gelegen op het oosten, met uitzicht op de natuurtuin.
- Parkeerplaats: 2 privé parkeerplaatsen.

Kenmerken