Beschrijving

Bouw jouw vrijstaande droomhuis op een prachtige kavel in Bladel!

Altijd al gedroomd van een vrijstaande woning die volledig aan jouw wensen voldoet? Dan is dit jouw kans! Deze schitterende bouwkavel van maar liefst 700 m², gelegen op een zichtlocatie nabij de Lange Trekken in Bladel, biedt jou de mogelijkheid om jouw ideale (t)huis te realiseren. De kavel is omgeven door groen en biedt volop ruimte, terwijl alle voorzieningen binnen handbereik liggen.

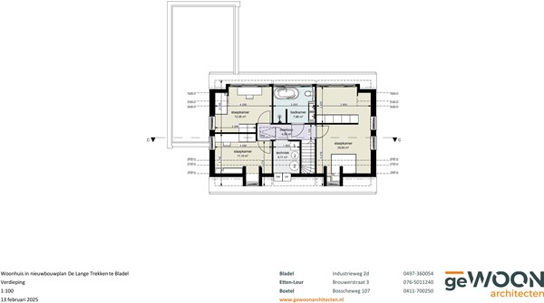
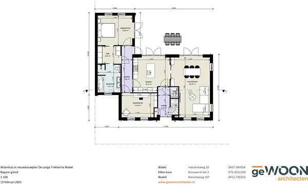
Om alvast een indruk te geven van de mogelijkheden, hebben wij twee impressies met plattegronden toegevoegd die passen binnen de eisen van het bestemmingsplan. Uiteraard dient het uiteindelijke ontwerp nog altijd te worden voorgelegd aan de welstand.

De kavel ligt in de nieuwe woonwijk aan de Lange Trekken en is vrij vooraan gelegen aan de nieuwe straat 'Haverland'. Een straat met statige royale woningen en perfecte landelijke uitstraling. De kavel betreft het vijfde perceel vanaf de Lange Trekken gezien waardoor je lekker rustig woont en geniet in de achtertuin. Het perceel biedt veel opties voor jouw ideale droomhuis! 

Het perceel is gelegen op korte afstand van het dorpscentrum welke beschikt over diverse supermarkten, winkels en horecagelegenheden. Maar je bent vanaf deze locatie ook binnen enkele minuten op de op- en afritten van de A67 richting Eersel/Veldhoven en bedrijven zoals ASML, Maxima Medisch centrum of High Tech Campus uitstekend bereikbaar zijn.

De frontbreedte van de kavel is ca. 20 meter breed.  Je mag binnen het aangegeven bouwblok de hoofdwoning bouwen met een goothoogte van 6 meter en een nokhoogte van 10 meter. Op verzoek kunnen wij je alle bestemmingsplaninformatie en regels toesturen. 

Het kavel wordt toegankelijk geleverd. Erfafscheiding en nutsvoorzieningen zijn voor rekening van koper op eigen terrein.

Bijzonderheden

• Een van de laatste kavels aan de rand van nieuwbouwplan Lange Trekken!
• Toplocatie Bladel
• Oppervlakte circa 700 m²
• Maximale bouwhoogte 10 meter
• Maximale goothoogte 6 meter
• Rioolaansluiting (en andere nuts) door de koper aan te vragen
• Vergunning voor een inrit door de koper aan te vragen
• Bouwstroom en -water dienen door koper te worden aangevraagd evenals het plaatsen van een tijdelijke woonunit als dit wenselijk is. 
• KW-certificaat (Woonkeur) dient na de bouw aangevraagd te worden door koper
• Energieneutraal zal moeten worden aangetoond middels een BENG berekening. Dit kan pas bij de aanvraag omgevingsvergunning door koper
• Notaris wordt door de koper gekozen
• Overdracht in overleg te bepalen

Kenmerken