Beschrijving

Starters opgelet!
Ben je op zoek naar een woning waar je zó in kunt? Deze instapklare tussenwoning is de afgelopen jaren flink aangepakt en gemoderniseerd. Je vindt hier onder andere een lichte doorzonwoonkamer, een moderne keuken, een ruime badkamer en maar liefst vier slaapkamers. De tuin ligt op het zonnige zuidwesten en beschikt over een praktische berging én achterom. Gelegen in een rustige en kindvriendelijke straat, is dit de perfecte woning voor starters of jonge gezinnen. Koffers pakken en verhuizen maar!

Indeling

Entree
Via het looppad in de voortuin bereik je de voordeur van deze woning, welke toegang biedt tot de entreehal. De hal geeft toegang tot de meterkast, handige provisiekast en het toilet, voorzien van closet en fonteintje. Tevens biedt de hal voldoende ruimte voor een garderobe(nis). De hal geeft toegang tot de trapopgang naar de eerste verdieping en tot het woongedeelte.

Het gehele woongedeelte is in 2021 compleet gerenoveerd en gemoderniseerd. Voorzien van een nieuwe pvc-vloer, stucwerk wanden en plafonds en een nieuwe keuken.

Woonkamer
De ruime doorzonwoonkamer is voorzien van grote raampartijen waardoor deze heerlijk licht is. De woonkamer is afgewerkt met een moderne pvc vloer, strak gestucte wanden en plafonds. De woonkamer bevindt zich voornamelijk aan de achterzijde van de woning waar je voldoende ruimte hebt voor het plaatsen van een heerlijke loungebank, waar je na een lange dag heerlijk kunt ontspannen met uitzicht over de achtertuin. Daarnaast is er ook nog volop ruimte om een royale eettafel te plaatsen, waar jij samen met vrienden en familie kunt dineren.  

Keuken
De eyecatcher van het leefgedeelte is de moderne open keuken welke in 2021 compleet vernieuwd is. De keuken beschikt over een hoog kwaliteitsniveau met een royaal werkblad en is ingedeeld in een wandopstelling en kastenwand. De keuken beschikt verder over alle gewenste apparatuur zoals een 4-pits gaskookplaat, afzuigkap, combi-magnetron, koelkast, vaatwasser en spoelbak met mengkraan.

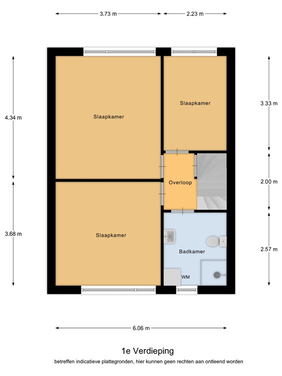
Eerste verdieping

Via de vast trap bereik je de overloop, welke toegang biedt tot drie slaapkamers, badkamer en vaste trapopgang naar de tweede verdieping. Daarnaast is de gehele verdieping voorzien van houten kozijnen met dubbele beglazing en beschikt het over een nieuwe laminaatvloer (2021).

Slaapkamers
De verdieping beschikt over drie slaapkamers met variërende grootte. Aan de achterzijde zijn twee slaapkamers gelegen waarvan de masterbedroom zeer ruim van opzet is. Deze slaapkamer biedt voldoende ruimte aan een tweepersoonsbed en kledingkast. De tweede slaapkamer is een kleinere kamer, ideaal als kinderkamer of kantoorruimte. Aan de voorzijde ligt de derde slaapkamer welke eveneens ruim is opgezet en ook voldoende ruimte biedt voor een tweepersoonsbed en een kledingkast. Alle slaapkamers beschikken over royale raampartijen waardoor de kamers lekker licht zijn.

Badkamer
Deze badkamer beschikt over de juiste ruimte en indeling om hier iets moois van te maken. De badkamer beschikt over een douche, closet, wastafel met mengkraan en de witgoed aansluitingen. Aan jou de kans om hier jouw droom badkamer te realiseren!

Tweede verdieping

Middels vaste trap te bereiken tweede verdieping welke ingedeeld is in een voorzolder en achterzolder. In de voorzolder is de opstelling van de Cv-ketel Intergas uit 2014 en aan beide zijde vind je volop afsluitbare bergruimte.

De achterzolder is royaal van opzet en zou prima als vierde slaapkamer of hobbykamer kunnen worden gebruikt. Deze ruimte beschikt ook over een Velux dakraam wat voor voldoende daglicht zorgt. Daarnaast beschikt het ook over een wastafel met mengkraan. De gehele tweede verdieping is in 2021 voorzien van een nieuwe laminaatvloer.

Tuin

Achtertuin
De achtertuin gelegen op zonnige zuidwesten is een heerlijke plek om tot rust te komen en biedt volop privacy! De tuin is onderhoudsvriendelijk aangelegd en beschikt over diverse groene beplanting. Daarnaast is de tuin volledig omheind met een schutting en biedt volop ruimte om hier een heerlijke loungeset te plaatsen én een praktische eettafel, ideaal voor lange zomeravonden met familie en vrienden. De achtertuin beschikt eveneens over een royale stenen berging met vliering en elektrapunten. Naast de berging is een extra afdak gemaakt, waar jij droog je fiets kunt stallen, ideaal toch?!

Voortuin
Fraai aangelegde voortuin voorzien van diverse beplanting en looppad naar de voordeur.

Bijzonderheden

- Royale leuke tussenwoning
- Begane grond gemoderniseerd & gerenoveerd
- Bouwjaar 1973
- Energielabel 
- Dak geïsoleerd & kruipruimte geïsoleerd
- Eigen achterom
- Luxe moderne open keuken
- Houten kozijnen met isolerende beglazing
- Betonnen verdiepingsvloeren
- Intergas HR 2014
- Stenen berging met vliering
- Tuin gelegen op het zonnige zuidwesten
- Vier slaapkamers
- Voldoende gemeenschappelijke parkeerplaatsen

Wacht niet te lang en kom snel kijken!

Kenmerken