Beschrijving

Welkom bij deze fijne tussenwoning!
Dit huis heeft de afgelopen jaren een frisse make-over gekregen, dus jij hoeft alleen nog je spullen mee te nemen. Wel zo fijn! 

Zodra je binnenstapt, voel je het: hier klopt alles. Drie slaapkamers (en zelfs ruimte voor een vierde), een aparte wasruimte, een badkamer én een achtertuin op het zonnige zuidwesten. Stel je voor: lange zomeravonden, een goed glas wijn en de zon die tot laat blijft hangen. Hier is iedere dag heerlijk thuiskomen.

De ligging is hier dan ook écht perfect! Je woont aan een verkeersarme straat in een kindvriendelijke wijk met voor de deur een groen speelveld. En het centrum van Bladel? Dat ligt op slechts drie minuten lopen! Winkels, supermarkten, gezellige horeca,  alles binnen handbereik. Even snel een boodschap doen, uitgebreid shoppen of een drankje op het terras? Het kan hier allemaal!

Grijp je kans en plan vandaag nog een bezichtiging.
Wacht niet te lang, want dit zou zomaar jouw perfecte thuis kunnen zijn!

Indeling

Entree
Via een verzorgd looppad in de voortuin bereik je de voordeur van deze woning. Eenmaal binnen is de entree voorzien van een meterkast, toilet en toegang tot de keuken. De voormalige deur naar de woonkamer is in 2020 dichtgemaakt, waardoor de indeling logischer is geworden.

Toilet
Het toilet is netjes afgewerkt met een pvc-vloer, halfhoog betegelde wanden en voorzien van een hangcloset en fonteintje.

Woonkamer
Wat een heerlijke ruimte om thuis te komen! De woonkamer is afgewerkt met een warme houten vloer, neutraal gestucte wanden en een strak plafond met sierlijsten en ornamenten. Door de grote raampartijen aan zowel de voor- als achterzijde geniet je de hele dag van volop lichtinval.

Aan de voorzijde creëer je een fijne loungehoek, perfect om te relaxen met uitzicht op het groene veld voor de woning. Aan de achterzijde is er voldoende ruimte voor een royale eettafel voor gezellige avonden met vrienden en familie. Vanuit hier kijk je dan ook heerlijk weg over de zonnige achtertuin.

Keuken
De keuken bevindt zich aan de achterzijde en is uitgevoerd in een praktische wandopstelling met witte kastjes en een donker werkblad. Deze ruimte beschikt over een 4-pits kookplaat, afzuigkap (2022) en vaatwasser (2021). De koelkast en de combi-oven zijn netjes weggewerkt in de extra hoekkast, die bovendien extra opbergruimte biedt. Kortom, alles wat je zoekt in een keuken! 

Daarnaast vind je hier een handige trapkast, ideaal voor extra voorraad. En dankzij de loopdeur stap je zo de achtertuin in, wel zo handig.

Eerste verdieping

Eerste verdieping
Via de vaste trap bereik je de overloop met toegang tot drie slaapkamers, een badkamer, een aparte wasruimte en de trapopgang naar de tweede verdieping. De gehele verdieping is netjes afgewerkt met een laminaatvloer (2020). Alle slaapkamers zijn voorzien van hardhouten kozijnen met dubbel glas en rolluiken. 

Slaapkamers
Aan de achterzijde bevinden zich twee slaapkamers. De grootste kamer is tevens de masterbedroom en is daarmee ruim van opzet en biedt voldoende plek voor een tweepersoonsbed en een grote kledingkast. Deze kamer is ook voorzien van elektrische rolluiken en een praktische airco (2022) voor in de warme maanden.

De tweede slaapkamer aan de achterzijde is compacter en daardoor perfect geschikt als babykamer, thuiskantoor of inloopkast. Vanuit deze kamer heb je toegang tot een balkonnetje met uitzicht op de tuin. Op het balkon bevindt zicht de buitenunit van de airco.

De derde slaapkamer is gelegen aan de voorzijde van de woning en is eveneens royaal. Hier kun je met gemak een tweepersoonsbed, kledingkast en een bureau kwijt.

Badkamer
De badkamer is volledig betegeld en voorzien van een ligbad, douche, hangcloset, wastafel en designradiator. Met wat extra liefde, tover jij deze ruimte om tot jouw droombadkamer!

Wasruimte
De aparte wasruimte is voorzien van de nog originele authentieke terrazzo vloer en gestucte wanden en plafond. Hier vind je dan ook de witgoedaansluitingen.

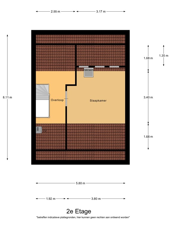
Tweede verdieping

Via een vaste trap bereik je de tweede verdieping die is opgedeeld in een voor- en achterzolder.

De voorzolder beschikt over extra opbergruimte onder de schuine kanten en hier bevindt zich ook de CV-ketel Atag 2015.

De achterzolder is verrassend ruim en licht dankzij het grote dakraam. Deze kamer is ideaal als extra slaapkamer, werkplek of hobbyruimte. Onder de schuine kant vind je nog extra bergruimte.

Tuin

Voortuin
Je komt aangereden in een verkeersarme straat en parkeert je auto tegenover de woning, waar je meer dan voldoende parkeerplekken vindt. De voortuin is keurig aangelegd en voorzien van siergrind. Via een looppad bereik je de voordeur van deze leuke woning!

Achtertuin
De achtertuin is gelegen op het zonnige westen en is grotendeels voorzien van gras, bestrating en diverse beplanting. Via het looppad bereik je de berging en de achterom, wel zo ideaal om met je fiets achterom te komen. 

Direct achter de woning vind je een fijne zonneluifel, zodat je ook op warme zomerdagen heerlijk in de schaduw kunt zitten. Geniet je liever van de eerste zonnestralen in de ochtend? Achterin de tuin is een extra zithoek gecreëerd, perfect voor een kop koffie in de ochtendzon.

Bijzonderheden

- Bouwjaar: 1960
- Energielabel D
- Woonoppervlakte m²
- Perceeloppervlakte 180 m²
- Hardhouten kozijnen met dubbel glas en rolluiken
- ATAG cv-installatie 2015
- Airco in master bedroom
- Vier slaapkamers (incl. zolderkamer)
- Achtertuin met zonneluifel, berging en achterom
- Ideale ligging op loopafstand van het centrum
- Groen veld met speeltuin voor de deur
- Instapklare woning
- Ideaal voor starters en gezinnen

Ben jij nu ook zo enthousiast geworden? Wacht dan niet langer en plan direct een bezichtiging in!

Kenmerken