| Adres: | Lodewijk van Deyssellaan 17, 5531 SL Bladel |
| Prijs | € 459.000,- k.k. |
| Type object | Woonhuis, eengezinswoning, tussenwoning |
| Perceeloppervlakte | 180 m² |
| Woonoppervlakte | 145 m² |
| Aanvaarding | In overleg |
| Status | Verkocht onder voorbehoud |
Ben jij op zoek naar een instapklare tussenwoning? Wacht dan niet langer, want dit pareltje staat nu te koop! Binnen wacht je een sfeervolle en royale woonkamer en een royale open keuken, voorzien van een lichtkoepel. In 2023 is nagenoeg de hele woning onder handen genomen – en dat zie je dan ook direct terug! De gehele begane grond is flink onder handen genomen en voorzien van vloerverwarming en een nieuwe pvc-visgraatvloer, wat zorgt voor een luxe uitstraling die helemaal past bij de woontrends van nu. Met een royale living, moderne keuken, vier slaapkamers, een badkamer én een aparte wasruimte biedt deze woning alles waar jij naar op zoek bent. En extra fijn: vanuit de achtertuin loop je zó de speeltuin in. Ideaal voor gezinnen of gewoon om lekker buiten te zijn! Wacht niet te lang en bel ons direct voor een afspraak. Wie weet wordt dit binnenkort jouw nieuwe (t)huis!
De royale voortuin van de woning is een fijne plek, volledig in het groen aangelegd en biedt een looppad naar de voordeur. Gezien de grootte van de voortuin zou deze ook ideaal kunnen zijn voor de kinderen om een leuke speelhoek te maken of om hier een lekkere loungeset te plaatsen. Entree Welkom thuis! Bij binnenkomst van de woning word je verwelkomd in een nette entreehal, die is voorzien van een nieuwe pvc-visgraatvloer (2023). De hal biedt toegang tot de meterkast en middels een glazen schuifdeur betreed je de woonkamer. Woonkamer De lichte woonkamer is een fijne plek om thuis te komen. Aan de voorzijde is een gezellige zithoek gecreëerd, waar je na een lange dag heerlijk kunt ontspannen met uitzicht op de groene voortuin. Ideaal, want zo houd je makkelijk een oogje in het zeil bij spelende kinderen. Doorlopend naar achteren is er volop ruimte voor een royale eettafel en eventueel een speelhoek. Dankzij de open verbinding met de keuken voelt het als één ruimtelijk geheel. De woonkamer is voorzien van een nieuwe pvc-visgraatvloer (2023) met vloerverwarming. De wanden zijn volledig opnieuw gestuct en ook het plafond is strak afgewerkt. Via de woonkamer heb je toegang tot een gang waar het toilet zich bevindt, voorzien van een hangcloset en fonteintje, een trapkast en de trapopgang naar de eerste verdieping. Keuken De open keuken is in 2023 volledig verbouwd en dat zie je aan alles: een nieuwe vloer, een splinternieuwe keuken met inbouwapparatuur én sfeervolle inbouwspots die de ruimte laten stralen. Een fantastische kleurkeuze met een licht blad en betoncire wanden maken deze ruimte tot een harmonieus geheel. Wauw, dat is het eerste wat je roept zodra je hier binnenkomt. Want wat een keuken is dit! Een droomkeuken voor velen, eentje die zo uit een woonblad komt! Hier krijg je spontaan zin om te gaan koken, borrelen en genieten. Er is meer dan genoeg werkbladruimte én kastruimte, dus al je keukengerei, voorraad en servies vinden hier moeiteloos hun plekje. En qua apparatuur is het hier dik in orde: een 4-pits inductiekookplaat met afzuigkap, koelkast, vaatwasser, oven, combi-oven én een wijnklimaatkast met twee zones. Alles wat je nodig hebt om jouw favoriete gerechten te bereiden en om ze stijlvol te serveren. Daarnaast is de keuken ook nog voorzien van extra handige functies zoals een draaiplateau, zodat de hoek optimaal benut wordt, en een handige apothekerskast voor al jouw kruiden! Het grote keukenraam aan de achterzijde biedt een fijne uitkijk over de achtertuin en de lichtkoepel zorgt voor nét dat beetje extra daglicht. En alsof dat nog niet genoeg is, heb je vanuit de keuken ook nog eens direct toegang tot de bijkeuken. Handig én praktisch! Bijkeuken Deze praktische bijkeuken op de begane grond is ook volledig vernieuwd en voorzien van een nieuwe tegelvloer met vloerverwarming. Deze ruimte is ideaal voor extra opslag of voor het plaatsen van een extra koelkast of diepvries. Ook zijn hier extra aansluitingen gemaakt voor het witgoed en vind je hier de verdeelunit van de vloerverwarming. Er is zelfs al rekening gehouden met de toekomst: de aansluitingen voor een warmtepomp zijn hier gemaakt. Via de bijkeuken heb je directe toegang tot de achtertuin.
Middels een vaste trap bereik je de overloop, met toegang tot drie royale slaapkamers, de badkamer en de vaste trapopgang naar de tweede verdieping. De eerste verdieping is in 2023 ook grotendeels vernieuwd en beschikt over een nieuwe pvc-vloer, nieuw stucwerk en een nieuwe badkamer. Alle slaapkamers beschikken over kunststof kozijnen met HR++ beglazing en draai-kiepramen met horren. Slaapkamers De royale eerste verdieping beschikt over drie slaapkamers van verschillende grootte. Aan de voorzijde vind je twee kamers, waaronder de masterbedroom, die royaal van opzet is en voldoende ruimte biedt voor een tweepersoonsbed en een grote kledingkast. De tweede slaapkamer aan de voorzijde is qua formaat ook ideaal en biedt een fijne ruimte als kinderkamer, kantoor of hobbyruimte. De derde slaapkamer, gelegen aan de achterzijde van de woning, is eveneens royaal van opzet en biedt voldoende ruimte voor een groot tweepersoonsbed en een kledingkast. Badkamer De moderne badkamer is in 2023 geheel vernieuwd en beschikt over een royale inloopdouche met glazendeur en zwarte accenten. Een fijn en ruim ligbad waar jij na een drukke dag heerlijk tot rust kunt komen... Een hangcloset, een moderne designradiator en een badmeubel met waskom en mengkraan maken het geheel compleet. De badkamer is geheel in stijl gerenoveerd en helemaal volgens de woontrends van nu gestyled. Alles wat jij nodig hebt om de dag goed te beginnen!
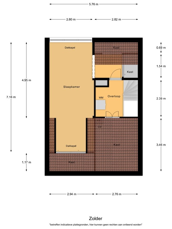
Middels een vaste trap bereik je de tweede verdieping van deze woning, die is opgedeeld in een voorzolder en een achterzolder. De voorzolder is voorzien van een vinylvloer, een inbouwkast onder de schuine wand en beschikt over witgoedaansluitingen. De achterzolder is zeer royaal van opzet, mede dankzij de grote dakkapellen die zowel aan de voor- als achterzijde zijn geplaatst. Hierdoor is deze ruimte enorm groot en daardoor geschikt voor meerdere doeleinden, zoals: een slaapkamer met chillruimte, hobbykamer, kantoorruimte, sportruimte – noem maar op! Onder de dakschuinte is er nog extra opbergruimte aanwezig, wel zo handig.
Voortuin Via een looppoortje kom je terecht in de royale voortuin, welke rondom voorzien is van diverse groene beplantingen en je direct een warm welkom geeft. Een heerlijk grasveld en een fijn hoekje betegeld waar jij een heerlijke loungeset kunt plaatsen. Zie je jezelf al zitten met een kop koffie in het zonnetje? Een looppad leidt je naar de voordeur, alsof het je persoonlijk uitnodigt om binnen te komen. En ook praktisch is er aan gedacht: in de straat is altijd volop parkeergelegenheid, dus geen stress over een plekje voor de deur. Achtertuin De achtertuin is onderhoudsvriendelijk aangelegd en biedt voldoende ruimte om een royale eettafel te plaatsen, waar jij volop kunt genieten met vrienden en familie. Ook beschikt de tuin over een kleine berging, waar jij de kliko's en tuingereedschap kunt opslaan. Maar het leukste? Via de looppoort aan de achterzijde wandel je zó de speeltuin in. Ideaal voor de kinderen en toch dichtbij huis.
- Bouwjaar 1973 - Woonoppervlakte 145 m² - 180 m² perceel - Energielabel A - Instapklare royale tussenwoning - Ideaal voor starters en jonge gezinnen - Rustige ligging - Kunststof kozijnen met HR++ glas 2018 (m.u.v. keukenraam + dakkapel zolder voorzijde) - Zonnepanelen 10x Afgelopen jaren verbeterd: Begane grond: - 2023 Vloerverwarming aangelegd - 2023 Nieuwe pvc- visgraatvloer - 2023 Nieuw elektra woonkamer + keuken - 2023 Leidingen weggewerkt en getrokken door heel het huis - 2023 Meterkast uitgebreid - 2023 Nieuwe elektra door heel het huis - 2023 Nieuwe tegelvloer en stucwerk bijkeuken - 2023 Nieuwe keuken - 2023 Voorbereiding warmtepomp - 2023 Aansluiting wasmachine - 2023 Buitendeur tuin voorzien van nieuw kozijn en deur - 2024 Nieuwe trapbekleding Eerste verdieping - 2023 Nieuwe pvc- vloer - 2023 Nieuwe badkamer - 2023 Nieuw stucwerk - 2025 Trap naar zolder opnieuw geschilderd Algemeen: - 2023 Dakbedekking (bitumen) + loodstrips vernieuwd dakkapel - 2023 Dak aanbouw (keuken) voorzien van nieuw bitumen + nieuw lichtkoepel - 2023 Waterontharder geplaatst - 2024 10 zonnepanelen met allen een eigen omvormer Wil je de gezellige sfeer van het huis en de omgeving ”echt” voelen? Kom dan snel eens langs voor een vrijblijvende bezichtiging!
| Vraagprijs | € 459.000,- k.k. |
| Inrichting | Niet gestoffeerd |
| Inrichting | Niet gemeubileerd |
| Status | Verkocht onder voorbehoud |
| Aanvaarding | In overleg |
| Aangeboden sinds | Dinsdag 19 augustus 2025 |
| Laatste wijziging | Maandag 15 september 2025 |
| Type object | Woonhuis, eengezinswoning, tussenwoning |
| Soort bouw | Bestaande bouw |
| Bouwperiode | 1973 |
| Type dak | Zadeldak |
| Isolatievormen | Dubbel glas HR-glas Muurisolatie Vloerisolatie Volledig geïsoleerd |
| Perceeloppervlakte | 180 m² |
| Woonoppervlakte | 145 m² |
| Inhoud | 503 m³ |
| Oppervlakte externe bergruimte | 2 m² |
| Aantal bouwlagen | 3 |
| Aantal kamers | 5 (waarvan 4 slaapkamers) |
| Aantal badkamers | 1 (en 1 apart toilet) |
| Ligging | Aan rustige weg Dichtbij openbaar vervoer In woonwijk Nabij school |
| Type | Voortuin |
| Oriëntering | West |
| Staat | Normaal |
| Tuin 2 - Type | Achtertuin |
| Tuin 2 - Oriëntering | Oosten |
| Tuin 2 - Heeft een achterom | Ja |
| Tuin 2 - Staat | Goed onderhouden |
| Energielabel | A |
| CV ketel | Nefit |
| Warmtebron | Gas |
| Bouwjaar | 2011 |
| Combiketel | Ja |
| Eigendom | Eigendom |
| Warm water | CV-ketel |
| Verwarmingssysteem | Centrale verwarming Vloerverwarming (gedeeltelijk) |
| Ventilatie methode | Mechanische ventilatie Natuurlijke ventilatie |
| Keukenvoorzieningen | Inbouwapparatuur |
| Badkamervoorzieningen | Inloopdouche Ligbad Toilet Wastafel Wastafelmeubel |
| Tuin aanwezig | Ja |
| Heeft schuur/berging | Ja |
| Heeft zonnepanelen | Ja |
| Heeft ventilatie | Ja |
| Kadastrale aanduiding | Bladel G 1915 |
| Perceeloppervlakte | 180 m² |
| Omvang | Geheel perceel |
| Eigendomsituatie | Eigen grond |