Beschrijving

Welkom aan de Nicolaas Beetslaan 37 in Bladel. Een rustige, verkeersluwe straat waar deze verrassend ruime woning op je staat te wachten. Met ruim 120 m² woonoppervlakte en praktische indeling is dit een ideale plek voor starters én jonge gezinnen die nét dat beetje extra ruimte zoeken.

Met drie fijne slaapkamers op de eerste verdieping en de mogelijkheid om op de tweede verdieping een vierde slaapkamer te realiseren, groeit deze woning moeiteloos met je mee. Op de begane grond geniet je van een royale woonkamer met open keuken: een fijne leefruimte waar koken, eten en ontspannen vanzelf samenkomen.

Buiten is het minstens zo prettig. De zonnige achtertuin op het zuidwesten is strak aangelegd en beschikt over een overkapping en volop bergruimte, perfect voor lange zomeravonden, hobby’s of gewoon lekker buiten zitten. Kortom: een complete, comfortabele woning waar je zó in kunt.

Indeling

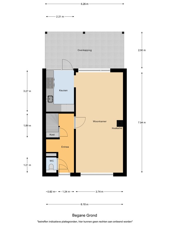
Entree
Zodra je via het looppad de voortuin doorkruist bereik je de entree. De ontvangsthal maakt direct indruk met een strakke tegelvloer, gestuukte wanden-en plafond. Vanuit deze entree heb je toegang tot meerdere vertrekken. Zo vind je hier de toiletruimte met hangcloset, de praktische provisiekast met toegang tot de kruipruimte en de trapopgang naar de eerste verdieping. En dan… de doorgang naar de heerlijke woonkamer waar het woonplezier pas écht begint.

Woonkamer
Aan de voorzijde van de woning ligt de sfeervolle woonkamer, een fijne, lichte leefruimte waar je meteen ziet hoeveel ruimte. Strak gestucte wanden en strak plafond worden hier mooi gecombineerd met een donkergrijze tegelvloer wat zorgt voor een rustige moderne look. Het grote raam aan de voorzijde laat volop daglicht binnenstromen waardoor de ruimte heerlijk licht en uitnodigend aanvoelt. 

Eetgedeelte
Aan de achterzijde van de woning vind je het gezellige eetgedeelte met een grote raampartij met uitzicht op de achtertuin. Perfect om hier een royale eethoek te creëren met een directe toegang tot de open keuken. 

Keuken
Aan de achterzijde van de woning ligt de ruime keuken die in 2019 door de huidige eigenaar is vernieuwd. De keuken is praktisch ingedeeld in een hoekopstelling en biedt volop opbergruimte voor al je kookgerei.

De keuken is voorzien van van alle denkbare inbouwapparatuur waaronder een 6-pits kookplaat met ingebouwde oven, vaatwasser, afzuigkap, koelkast met vriesvak . Een groot pluspunt: is dat je vanuit de keuken zo de achtertuin in stapt! Ideaal voor gezellige maaltijden buiten of een kop koffie in het zonnetje. 

Zie jij jezelf hier al wonen?

Eerste verdieping

Via de vast trap bereik je de overloop, welke toegang biedt tot drie slaapkamers, moderne badkamer en vaste trapopgang naar de tweede verdieping. De overloop is voorzien van een tegelvloer. Daarnaast is de gehele verdieping voorzien van houten kozijnen met dubbele beglazing.

Slaapkamers
De verdieping beschikt over drie slaapkamers met variërende grootte. Aan de achterzijde zijn twee slaapkamers gelegen waarvan een slaapkamer zeer ruim van opzet is. Deze slaapkamer wordt momenteel in gebruik genomen als yoga ruimte maar biedt voldoende ruimte aan een tweepersoonsbed en kledingkast. De tweede slaapkamer is een kleinere kamer, ideaal als kinderkamer of kledingkamer zodat deze nu in gebruik wordt genomen. Aan de voorzijde ligt de derde slaapkamer welke eveneens ruim is opgezet en als masterbedroom in gebruik wordt genomen. Alle slaapkamers beschikken over veel glas waardoor de kamers lekker licht zijn.

Badkamer
Deze badkamer is in 2018  vernieuwd, volledig betegeld met neutrale kleurtinten. De badkamer is voorzien van alle gemakken waaronder een grote inloopdouche, hangcloset, designradiator, mechanische ventilatie en een fraai wastafelmeubel. Het raam geeft naast daglicht ook de mogelijkheid om de ruimte te ventileren.

Tweede verdieping

Middels vaste trap te bereiken tweede verdieping welke ingedeeld is in een voorzolder en achterzolder. In de voorzolder is de opstelling van de Nefit CV ketel uit 2017 en zijn de aansluitingen voor het witgoed aanwezig. 

De achterzolder is royaal van opzet en zou prima als vierde slaapkamer of hobbykamer kunnen worden gebruikt. Deze ruimte beschikt ook over een Velux dakraam wat voor voldoende daglicht zorgt. Daarnaast beschikt het ook over een wastafel met mengkraan.

Tuin

Voortuin
De voortuin is netjes aangelegd en voorzien van diverse groene beplanting.. Middels looppad bereik je de voordeur van deze leuke woning!

Achtertuin
Ook buiten is het genieten. De achtertuin is voorzien van een royale overkapping met een grote lichtkoepel, waardoor je binnen in de woning altijd voldoende daglicht behoudt. Onder de overkapping zit je het hele jaar door heerlijk beschut, ideaal voor lange zomeravonden, een kop koffie in de ochtend of gezellige borrels met vrienden. De tuin is verder onderhoudsvriendelijke aangelegd met bestrating en een border met diverse beplantingen. Aan de achterzijde staat nog een ruime berging en dubbele overstek voor opslag van het hout.

Bijzonderheden

- Royale leuke tussenwoning
- Bouwjaar 1973
- Woonoppervlakte 124 m²
- Perceeloppervlakte 165 m²
- Energielabel C
- Eigen achterom
- Moderne open keuken 2019
- Houten kozijnen met isolerende beglazing
- Nefit cv-ketel 2017
- Badkamer 2018
- Stenen berging met vliering
- Tuin gelegen op het zonnige zuidwesten
- Royale overkapping in de tuin
- Vier slaapkamers

Wacht niet te lang en kom snel kijken!

Kenmerken