Beschrijving

Welkom in deze instapklare tussenwoning op een heerlijke plek!

De afgelopen jaren is deze woning volledig gemoderniseerd waardoor je hier zó kunt intrekken. Binnen vind je een lichte woonkamer met een fijne indeling en een open keuken die perfect aansluit op het leefgedeelte. Op de eerste verdieping zijn twee slaapkamers en een moderne badkamer en op de tweede verdieping ligt een extra kamer, ideaal als derde slaapkamer, werkruimte of hobbykamer.

De achtertuin is een plek om van te genieten: gelegen op het zonnige zuidwesten en voorzien van een royale overkapping die afsluitbaar is. Of het nu zomer of winter is, hier zit je altijd goed.

De ligging maakt het plaatje compleet: een rustige, gezellige buurt met diverse speeltuintjes en een basisschool in de omgeving. 

Kortom: een woning waar je je direct thuis voelt. Kom kijken en ervaar het zelf!

Indeling

Entree
Via de groene en aangelegde voortuin met diverse beplanting en bestrating bereik je de voordeur van deze woning, welke toegang biedt tot de entreehal. De gehele begane grond is voorzien van een fraaie laminaat vloer, strakke stucwerk wanden en plafonds. In de hal bevindt zich de gemoderniseerde toiletruimte met hangcloset en fonteintje, de meterkast en een ruime trapkast voor het bergen van spullen. De hal geeft toegang tot de trapopgang naar de eerste verdieping en tot het woongedeelte.

Woonkamer
De ruime woonkamer is voorzien van grote raampartijen, waardoor deze heerlijk licht is. De woonkamer is afgewerkt met een nette laminaatvloer, strakke stucwerk wanden en plafonds. Aan de voorzijde is het zitgedeelte gesitueerd welke plaats biedt voor een grote hoekbank. Doorlopend naar achter vind je het eetgedeelte met aansluitend de moderne open keuken.

Keuken
De eyecatcher van het leefgedeelte is de moderne open keuken met eiland (2018). De keuken beschikt over een moderne inbouwkeuken in wandopstelling en een eiland met een composieten werkblad. De keuken beschikt over alle gewenste apparatuur zoals een inductiekookplaat, combi-oven, een ingebouwde afzuigkap, een koelkast, een RVS spoelbak en een vaatwasser. Middels een loopdeur is royale overkapping te bereiken.

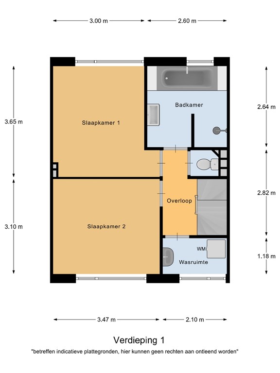
Eerste verdieping

Via de vast trap bereik je de overloop, welke toegang biedt tot de twee slaapkamers, de moderne badkamer, apart toilet en de vaste trap naar de tweede verdieping. De verdieping is voorzien van een dezelfde laminaatvloer als de begane grond, strakke stucwerk wanden en strakke stucwerk plafonds. Daarnaast is de gehele verdieping voorzien van houten kozijnen met dubbele beglazing.

Slaapkamers
Beide slaapkamers op deze verdieping zijn royaal van opzet en bieden voldoende ruimte voor een tweepersoonsbed en een kledingkast. De masterbedroom bevindt zich aan de voorzijde van de woning en kijkt uit over het straatbeeld, terwijl de tweede slaapkamer aan de achterzijde ligt met uitzicht op de tuin.

Badkamer
Deze moderne en luxe badkamer is volledig afgewerkt met hoogwaardige materialen en biedt alles wat je nodig hebt, om de dag goed te beginnen. Geniet van een royaal ligbad, een ruime inloopdouche, een stijlvol badmeubel en een designradiator. Het grote raam zorgt voor veel daglicht en zorgt voor extra ventilatie. Een ruimte waar jij hét ultieme spa moment kunt beleven!

Toilet
Vanuit de overloop is er ook nog een seperate toilet te bereiken. Deze is luxe afgewerkt en voorzien van hangcloset.

Wasruimte
De voormalige badkamer, is omgebouwd tot wasruimte en voorzien van de witgoedaansluitingen en een wastafel. Deze ruimte is geheel betegeld en voorzien van natuurlijke en mechanische ventilatie.

Tweede verdieping

Middels vaste trap te bereiken tweede verdieping welke ingedeeld is als voorzolder en achterzolder. 

De voorzolder is voorzien van een cv-ketel (Vaillant, 2019) en biedt volop ruimte voor het opbergen van spullen.

De achterzolder is zeer royaal van opzet en dankzij het grote dakraam heerlijk licht. Deze ruimte is dan ook ideaal om als extra slaapkamer te gebruiken, maar kan daarnaast ook prima functioneren als kantoorruimte of hobbyruimte. Een fijne plek met volop mogelijkheden!
De gehele verdieping is in 2020 vernieuwd en afgewerkt met een vloerbedekking en strak stucwerk wanden- en plafond.

Tuin

Achtertuin
Via de eigen achterom of de deur vanuit de keuken kom je in de ruime achtertuin. Deze is in 2020 voorzien van een sfeervolle overkapping met inbouwspots en afgelopen jaren voorzien van afsluitbare en op maat gemaakte doeken met transparante vensters. Hierdoor ontstaat een heerlijke plek waar je het hele jaar door kunt genieten! Ideaal als chill-ruimte, een hobbyruimte of gewoon een plek om even terug te trekken na een lange dag.

Daarnaast beschikt de tuin over een praktische (fietsen)berging, moderne bestrating, kunstgras en diverse beplanting. 

Voortuin
De voortuin is de afgelopen jaren flink onder handen genomen en het resultaat mag er dan ook zijn. Een tuin met diverse beplanting, bestrating en siergrind wat zorgt voor een mooi geheel.

Bijzonderheden

- Bouwjaar 1966
- Gebruiksoppervlakte 99 m²
- 165 m² perceel
- Energielabel B
- Moderne & instapklare tussenwoning
- Dichtbij alle voorzieningen 
- Keuken, badkamer, toiletten, elektra, vloeren, wanden en plafonds vanaf 2018 gerenoveerd
- Zolder en tuin (overkapping) vanaf 2020 gerenoveerd
- Gehele woning voorzien van hardhouten kozijnen met isolerende beglazing
- Speeltuin om de hoek
- Jeu de boules baan voor de deur
- Energielabel B
- CV-ketel Vaillant 2019
- Overkapping voorzien van afsluitbare op maat gemaakte transparante doeken 
- Voor en achtertuin gerenoveerd 2024
- Keuken voorzien van nieuwe kraan en close-in-boiler 2024
- Nieuwe opbouw kranen badkamer, douche en bad 2024

Een leuke tussenwoning gelegen in een rustige buurt, kom snel kijken!

Kenmerken