Beschrijving

Wonen in alle rust, op 15 autominuten van ASML, omringd door groen én in een landhuis met maar liefst vijf slaapkamers? Aan de Kuil 36 in Hapert komt die droom uit! Deze royale woning is de afgelopen jaren flink onder handen genomen en is nu helemaal van deze tijd: luxe, modern en écht instapklaar.

Binnen stap je een zee van ruimte in. De woonkamer loopt door in een sfeervolle zitkamer – perfect voor lange avonden met vrienden of een goed boek. De luxe open keuken met kookeiland is een echte eyecatcher, en de praktische bijkeuken, inpandige garage en berging maken het plaatje compleet.

Op de eerste verdieping vind je vier ruime slaapkamers en een compleet gerenoveerde badkamer waar je elke dag een beetje hotelgevoel ervaart. De tweede verdieping biedt een vijfde slaapkamer én een royale bergzolder.

En dan de tuin... Wauw! De achtertuin is vorig jaar volledig onder architectuur aangelegd, royaal, groen en helemaal af dankzij de stijlvolle overkapping. Ook de voortuin is volledig vernieuwd, dus het plaatje klopt van voor tot achter.

De woning is volledig geïsoleerd, voorzien van maar liefst 20 zonnepanelen, hybride warmtepomp en heeft energielabel A+. Duurzaam én comfortabel wonen dus!
Ben je op zoek naar een instapklare gezinswoning in een rustige, kindvriendelijke buurt, op slechts 5 minuten van het centrum en dichtbij scholen? Dan móet je deze woning gezien hebben.

Eigenlijk alles waar jij al een tijd naar op zoek bent... Kom snel kijken en laat je verrassen!

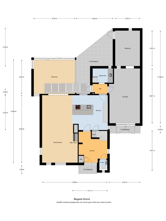
Indeling

Entree
Bij aankomst bij de woning parkeer je de auto op je eigen oprit. Liever achterom? Aan de linkerzijde van de woning is een poort met toegang tot de achtertuin. Middels looppad in de keurig aangelegde voortuin, bereik je de voordeur van deze prachtige woning. Kom snel verder en ontdek wat deze woning allemaal te bieden heeft! Na het openen van de voordeur voel je direct de royale ruimte en sfeer in de woning. De entree is royaal opgezet, beschikt over een moderne houten vloer (multiplank) in visgraat design met vloerverwarming, gestucte wanden- en plafonds. De hal geeft toegang tot de eerste verdieping, een volledig betegeld toilet met hangcloset en fonteintje, de meterkast en het woongedeelte.

Living
Wat een heerlijke ruimte om in te vertoeven! Zodra je binnenkomt, voel je het meteen: hier is ruimte, licht en vooral… sfeer. Aan de voorzijde van de woning vind je een royale zithoek waar je na een drukke dag lekker kunt neerploffen. En met de open haard aan zit je er in de wintermaanden zó knus bij dat je bijna vergeet dat het buiten koud is.
Loop je verder naar achteren, dan is er volop plek voor een speelhoek voor de kids, een leeshoek, of gewoon extra chillruimte. 
En dan… de fantastische zitkamer in de aanbouw. Dit is écht een pareltje! Dankzij de grote raampartijen rondom, een lichtstraat én een schuifpui stroomt het daglicht van alle kanten binnen en heb je direct een prachtig uitzicht over de fraai aangelegde achtertuin.  Dit is een plek waar jij heerlijke avonden doorbrengt samen met vrienden en familie, een gezellige borrel of een potje kaarten.

De afwerking is ook om door een ringetje te halen: een stijlvolle houten visgraat vloer met vloerverwarming, strak gestucte wanden en plafonds, en sfeervolle up- and-downlight verlichting aan de muur. Alles klopt hier. Dit is zo’n ruimte waar je binnenkomt en denkt: ja, hier wil ik wonen.

Open keuken
Wat een plaatje van een keuken! Deze luxe leefkeuken is niet alleen een lust voor het oog, maar ook een droom voor elke kookliefhebber. Het royale kookeiland vormt het stralende middelpunt. hier wordt gekookt, geborreld en vooral veel gekletst. Ook de kastenwand past perfect in het het geheel!

Uiteraard is de keuken van alle gemakken voorzien: een koelkast, vaatwasser, combi-oven (allen Siemens) en een Bora inductiekookplaat met geïntegreerd afzuigsysteem. En dan… de wijnklimaatkast! Altijd een wijntje op perfecte temperatuur bij de hand – proost!

Een Dekton keukenblad welke stijlvol, sterk en onderhoudsvriendelijk is en de hele keuken is op maat gemaakt (Royaal Keukens). Dat zie je en dat voel je. 

Ook aan praktische zaken is gedacht: volop werk- en bergruimte én een handige trapkast waar je met gemak je voorraad kwijt kunt. Alles netjes uit het zicht, maar altijd binnen handbereik.

Kortom: dit is niet zomaar een keuken, dit is een plek waar je leeft, lacht en geniet

Achterportaal
Via de keuken heb je toegang tot het achterportaal, welke je leidt naar de achtertuin, bijkeuken, de inpandige garage en de berging.

Bijkeuken
De halfhoog betegelde wasruimte is zeer praktisch en functioneel in gebruik. Zo zijn hier de aansluitingen voor het witgoed, een wasbak en diverse kastruimte aanwezig.

Inpandige garage
Een fijne extra, is de inpandige garage. De garage is ruim van opzet en voorzien van een openslaande garagedeuren. Hier heb je meer dan genoeg ruimte om je auto te parkeren of om al je spullen netjes op te bergen. Tevens kan je deze ruimte ook heel makkelijk omtoveren tot een speelkamer voor de kinderen.
Vanuit hier heb je ook inpandig toegang tot de berging welke direct achter de garage ligt.

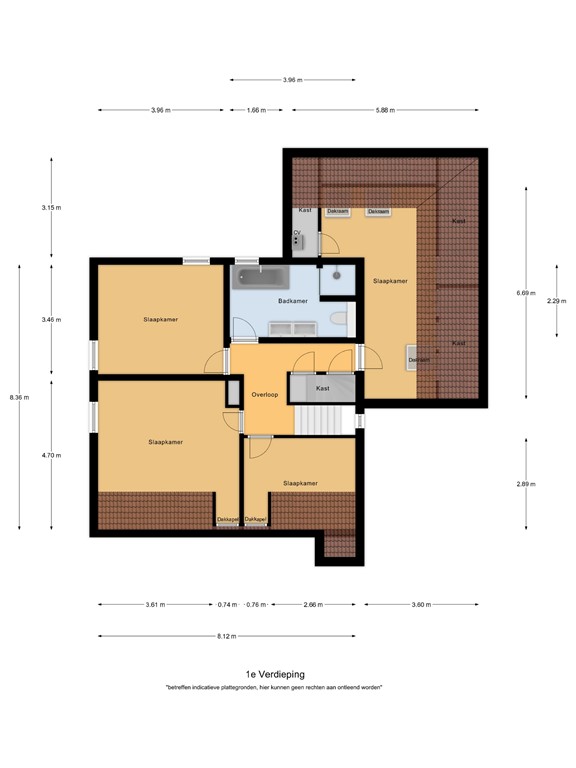
Eerste verdieping

Overloop
Middels degelijke vaste trap bereik je de royale overloop met toegang tot vier slaapkamers, een badkamer en de vaste trapopgang naar de tweede verdieping. De gehele eerste verdieping is voorzien van een vloerbedekking en gestucde wanden en plafonds.  

Slaapkamers
Deze verdieping telt vier slaapkamers met variërende grootte. Twee slaapkamers zijn gelegen aan de voorzijde van de woning waarvan de masterbedroom de grootste slaapkamer is. Hier is genoeg ruimte voor een tweepersoonsbed en vaste kast. De tweede slaapkamer wordt nu in gebruik genomen als kledingkamer, maar kan ook prima functioneren als babykamer of als kantoorruimte. De slaapkamers aan de tuinzijde van de woning zijn eveneens royaal van formaat en bieden genoeg ruimte voor een tweepersoonsbed. Alle slaapkamers zijn voorzien van kunststof kozijnen met draai-kiep functie en horren.

Badkamer
De luxe badkamer is compleet vernieuwd in 2021 en ook dan op geheel moderne wijze afgewerkt en voorzien van alle gemakken.
Een heerlijk ligbad, ideaal voor een ontspannen moment of de kinderen in bad doen. Een royale inloopdouche voorzien van rookglas, een hangcloset en een royaal badmeubel met dubbele wasbak en mengkranen. Deze badkamer biedt dan ook volop ruimte voor het hele gezin! 
En als kers op de taart, is deze badkamer ook nog voorzien van elektrische vloerverwarming. Zodat jij ook in de koude maanden, de ochtend heerlijk kunt beginnen.

Tweede verdieping

Middels vaste trapopgang is de tweede verdieping bereikbaar, welke opgedeeld is in twee aparte ruimtes. De voorzolder is een ideale plek om seizoensspullen in op te slaan. De tweede ruimte is een royale kamer die perfect kan functioneren als extra slaapkamer, maar ook prima als extra werkplek of als hobbyruimte. De gehele verdieping is afgewerkt met een nette laminaatvloer en strakke wanden.

Tuin

Voortuin
De voortuin wordt gekenmerkt door diverse beplanting en bestrating. De ruime oprit aan de rechterzijde van de woning biedt ruimte om meerdere auto's op eigen terrein te parkeren en aan de linkerzijde van de woning bevindt zich de achterom. 

Achtertuin
Wauw. Deze tuin is niet zomaar mooi – dit is een buitenruimte van het kaliber exclusief magazine waardig. In 2024 volledig onder architectuur aangelegd, en dat zie je aan álles. Strakke lijnen, doordachte indeling, hoogwaardige materialen… hier is werkelijk over elk detail nagedacht.

Het terras is royaal en stijlvol, perfect voor lange zomeravonden met een goed glas wijn en fijn gezelschap. De beplanting? Een levendig samenspel van groenblijvers en kleuraccenten, strak in verhoogde bakken en met een natuurlijke flow die je alleen bij een professioneel ontwerp ziet.

En dan de extra’s: de tuin is al voorbereid op een beregeningsinstallatie én een grondwaterpomp. Dus ook op de warmste dagen blijft alles fris, groen en sprankelend. Comfort en luxe gaan hier hand in hand.

Deze tuin is niet alleen een lust voor het oog, maar ook een statement. Een plek waar je buiten leeft, geniet en indruk maakt. Echt een parel en dat voel je zodra je buiten staat.

Bijzonderheden

- Bouwjaar 1990
- Flink gemoderniseerd en verduurzaamd sinds 2020
- Energielabel A+
- 198 m² woonoppervlakte & 859 m³ inhoud
- Royale woonkamer met ruime zitkamer 
- Luxe keuken met kook eiland
- Vijf slaapkamers
- Kunststof kozijnen en isolerende beglazing 
- Woning voorzien van alarmsysteem
- Royale inpandige garage & berging
- Intergas CV ketel 2014 i.c.m. warmtepomp WeHeat Blackbird 230V-8 2023
- 20 zonnepanelen x 400 WP 2023
- Hapert is gelegen aan A67 (Eindhoven, Veldhoven, Antwerpen)

Verbeteringen door de jaren heen:
2020:
- Begane grond nieuwe vloer
- Stucwerk gehele begane grond + hal en trappengat
- Nieuwe toilet
- Nieuwe keuken + kookeiland
- Nieuwe stalen deur met glas
- Nieuw elektra in de keuken
- Up-and-downlight voorzien in woonkamer

- Nieuwe badkamer 2021
- Volledig platdak vervangen 2023 (i.v.m. plaatsing warmtepomp, geen lekkage)
- Aanleg voor- en achtertuin 2024

Zie jij jezelf hier wel wonen? Maak dan snel een afspraak voor een bezichtiging!

Kenmerken