Beschrijving

Echt te gek! Deze statige robuuste tweekapper met een gebruiksoppervlakte van meer dan 200 m² in het centrum, op loopafstand van alle voorzieningen heeft alles wat je zoekt. Het is een woning die niet alleen ruimte biedt voor het hele gezin, maar ook luxe en comfort biedt in een duurzame setting.

Zodra je de woning binnenstapt, wordt je begroet door een zee van licht en ruimte. De begane grond heeft een speelse indeling en is hoogwaardig afgewerkt met degelijke en goede materialen. Het is niet alleen praktisch, maar ook stijlvol en uitnodigend.

De eerste verdieping biedt drie royale slaapkamers, allemaal met een moderne uitstraling en een royale badkamer die rust en comfort biedt. De zolder is nog opgedeeld in drie vertrekken waar twee ruimtes perfect zijn voor extra slaapkamers of hobbyruimtes.

Met maar liefst 380 m² aan perceel biedt dit genoeg ruimte voor het hele gezin! Aan de voorzijde kun je makkelijk meerdere voertuigen kwijt en geeft de privacy biedende achtertuin gelegen op het zonnige westen voor iedereen ruimte.

En wat duurzaamheid betreft? Dat zit helemaal goed! Deze woning is volledig geisoleerd en beschikt over 23 zonnepanelen met een energielabel A zodat je helemaal klaar bent voor de toekomst. Een woning die niet alleen jouw hart, maar ook je toekomst verwarmt!

Kortom, dit is de plek waar je van droomt. Wacht niet te lang, want dit prachtige huis zal snel van eigenaar veranderen!

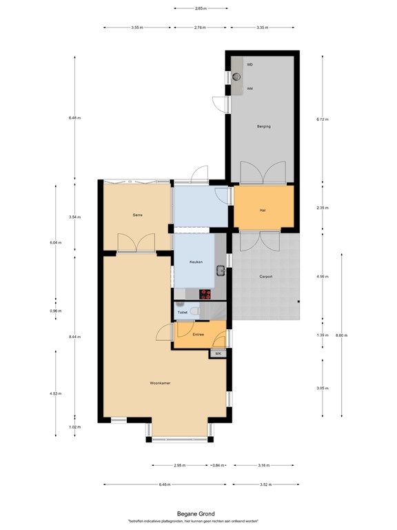
Indeling

Entree
Bij aankomst aan de woning parkeer je de auto op je eigen oprit met toegang tot de voordeur. Na het openen van voordeur voel je direct de ruimte en sfeer in de woning. De entree is royaal opgezet, beschikt over een natuursteen tegelvloer voorzien van vloerverwarming, gestuukte wanden en een strak plafond. De hal geeft toegang tot de eerste verdieping, een volledig betegeld toilet met hangcloset en fonteintje, de meterkast en het woongedeelte.

Living
Wat een heerlijke royale ruimte om in te verblijven! Door de vele raampartijen en grote erker aan de voorzijde de woning en openslaande tuindeuren aan de achterzijde komt het daglicht van alle kanten binnen en krijg je een fraai uitzicht over de achtertuin. De gehele ruimte is op prachtige wijze afgewerkt met een natuursteen tegelvloer met vloerverwarming, stucwerk wanden en strakke plafonds. De voorzijde van de woning wordt momenteel in gebruik genomen als TV hoek en geeft vanuit de erker een vrij uitzicht. Aan de achterzijde tref je de eethoek wat fijne plek met toegang tot de keuken om met het gezin samen te komen. De ruimte is biedt genoeg plek voor een 8-persoons eettafel. Via openslaande (tuin)deuren stap je zo de serre in die ervoor zorgt dat de woonkamer nog extra verlengd kan worden. 

Serre
Deze ruimte is bij de woning getrokken en ideaal als speelkamer, werkkamer of extra TV-kamer. De ruimte is voorzien van een tegelvloer met vloerverwarming en extra radiator. Door de harmonica deur kan de gehele achterpui open en voel je direct de verbinding met het buitenleven.

Keuken
In 2006 is een deel van keuken vergroot met meerdere raampartijen waardoor er veel natuurlijk daglicht binnenkomt. De indeling is praktisch, neutraal en verkeert nog in een goede staat. De inbouwkeuken in hoekopstelling is voorzien van inductie, afzuigkap, oven, vaatwasser, spoelbak en biedt meer dan voldoende opslagruimte. De keuken geeft je toegang tot het achterportaal en middels een loopdeur bereik je ook het buitenleven.

Achterportaal & berging
Vanuit de carport middels de dubbele deur kom je in het achterportaal uit met toegang tot de keuken en berging. Het achterportaal is voorzien van vloerverwarming en een grote inbouwkast wat ideaal is voor opslag van schoenen en jassen. Het verlengde van het achterportaal is de voormalige garage die tot het woonoppervlakte is bijgetrokken. De ruimte is netjes voorzien van een tegelvloer, beschikt over een radiator en kan multifunctioneel worden ingedeeld. De huidige bewoners gebruiken dit als extra opslag en als wasruimte.

Eerste verdieping

Middels degelijke vaste trap bereik je de overloop met toegang tot drie slaapkamers, badkamer, toiletruimte en tweede verdieping. De gehele verdieping is voorzien van een prachtige PVC vloer, gestuukte wanden en spuitwerk plafond. Alle slaapkamers zijn voorzien van hardhouten kozijnen met draai-kiep functie!

Slaapkamers 
Aan de voorzijde liggen twee slaapkamers waaronder de royale master bedroom. Deze kamer beschikt over een vaste inbouwkast en biedt dan ook genoeg ruimte om een tweepersoonsbed te plaatsen. Deze slaapkamer beschikt over een dubbele raampartij wat zorgt voor veel natuurlijk daglicht. Naast deze kamer ligt een tweede, iets kleinere slaapkamer maar nog meer dan voldoende ruimte voor een bed, kledingkast en een bureau te plaatsen.

Slaapkamer drie is gelegen aan de achterzijde en is ook royaal van opzet. Deze beschikt over een vaste inbouwkast en geeft middels de dubbele raampartij over een mooi uitzicht over de achtertuin. 

Badkamer
De badkamer is een fijne en royale ruimte waar je de dag heerlijk kunt beginnen. Je vind hier een ruime douche met glazen wand, een ligbad waar je kunt ontspannen na een lange dag en een royaal badmeubel met dubbele wastafel. Het grote raam zorgt ervoor dat je hier volop daglicht én ventilatie hebt. 

Toilet
Het fijne van deze verdieping is dat er een separaat toilet aanwezig is. Deze ruimte is voorzien van een hangcloset en fonteintje.

Tweede verdieping

Via de vaste trap bereik je de tweede verdieping waar je opnieuw verrast wordt door de ruimte. De overloop geeft toegang tot twee slaapkamers en een aparte technische ruimte. In de trapopgang hangt nog een airco die zorgt voor de nodige koeling-en verwarming op de verdiepingen.

Slaapkamers
De grootste ruimte op deze verdieping is een zeer royale kamer die moeiteloos kan dienen als extra slaapkamer of hobbyruimte. Deze ruimte is voorzien van een mooie laminaatvloer, strakke wandafwerking en kan indien wenselijk nog in tweeën gesplitst worden. Aan de achterzijde is nog een fijne dakkapel aanwezig voorzien van rolluik en zit aan de voorzijde nog een ruime inbouwkast. 
De tweede slaapkamer is voorzien van dezelfde laminaatvloer en wandafwerking. Deze ruimte beschikt over een groot Velux dakraam en onder de dakschuinte is nog praktische bergruimte gerealiseerd. 

Technische ruimte
Deze ruimte beschikt over de Vaillant CV ketel (2024), Inventum warmtepompboiler (2016) en omvormer van de zonnepanelen. De ruimte beschikt nog over een Velux dakraam en biedt nog ruimte om wat extra spullen op te slaan.

Tuin

Voortuin
De voortuin wordt gekenmerkt door diverse beplanting en bestrating. De ruime oprit  met carport aan de rechterzijde van de woning biedt ruimte om meerdere auto's op eigen terrein te parkeren. 

Achtertuin
Wauw, wat een heerlijke plek om te ontspannen en te genieten van het buitenleven! Deze zonnige achtertuin gelegen op het Westen biedt alles waar je naar op zoek bent. De achtertuin kenmerkt zich door bestrating, graspartij en de leilinde aan de achterkant zorgen voor optimale privacy. Aan de woningzijde heb je nog een elektrische luifel waar je zomers heerlijk onder kunt gaan genieten. Doordat er in het verleden een tweede perceel is aangekocht is de achtertuin lekker diep en biedt deze ruimte voor het hele gezin. Verder is er nog een praktische houten berging aanwezig voor het plaatsen van al je tuingereedschap.

Bijzonderheden

- Bouwjaar 2003
- Royale degelijke tweekapper
- Perceel 380 m²
- Met maar liefst 5 slaapkamers
- Volledig geisoleerd 
- Energielabel A
- 23 zonnepanelen
- Inventum warmtepompboiler 2016
- Vaillant CV ketel 2024
- Royale living voorzien van erker
- Vloerverwarming begane grond (muv achterportaal en berging)
- 2016 nieuwe PVC vloer eerste verdieping
- 2016 nieuwe laminaatvloer tweede verdieping
- Tweede verdieping voorzien van airco 2020
- Elektrische luifel 
- Hardhouten kozijnen met HR beglazing
- Zonnige achtertuin gelegen op het westen
- Buitenberging aanwezig
- Ligging in het centrum van Hapert

Neem snel contact op voor een bezichtiging, want deze kans wil je niet missen!

Kenmerken