Beschrijving

Ondernemers en levensgenieters opgelet!

Welkom bij DE woon(- en eventuele werk)locatie aan de Lend 2-4 te Reusel. Wauw wat een plek, direct naast alle voorzieningen maar toch rustig gelegen en volop woongenot en ondernemerskansen. Met maar liefst ruim 200 m² aan gebruiksoppervlakte en bijna 650 m² perceel biedt dit uniek object tal van mogelijkheden!

Ook aan ruimte rondom de woning geen gebrek: de zeer royale garage en multifunctionele kapsalon/hobbyruimte biedt volop mogelijkheden en is geheel naar eigen wens in te delen en te gebruiken.

Kom snel kijken en maak je dromen waar!

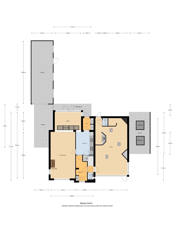
Indeling

Entree
Bij binnenkomst stap je in de ruime hal waar direct de prachtige lichte tegelvloer opvalt. In combinatie met de witte wandafwerking en plafond geeft het de woning een mooie uitstraling. in de hal is eveneens een garderobe-nis aanwezig. Vanuit de hal heb je toegang tot de meterkast, de volledig betegelde toiletruimte met hangcloset en fontentje, hobbyruimte/kapsalon en keuken.

Keuken
Vanuit de hal is er een prettige doorloop naar de keuken. De keuken is praktisch ingericht en uitgevoerd in een wandopstelling waardoor er veel werk- en kastruimte beschikbaar is. De keuken is voorzien van diverse inbouwapparatuur waaronder een oven, een vierpits glaskookplaat, een afzuigkap en een koelkast (2023). Een praktische pluspunt is dat je vanuit de keuken toegang hebt tot de praktische trapkast, ideaal voor extra voorraad in op te slaan. In de keuken is meer dan genoeg ruimte voor een (extra) keukentafel met stoelen.

Daarnaast is er vanuit de keuken directe toegang tot het achterportaal, waar je twee handige inbouwkasten en de achterdeur naar de achtertuin kunt vinden.

Woonkamer
Vanuit de keuken is de woonkamer te bereiken. De woonkamer is met een diepte van ca. 11m royaal van opzet waardoor veel indelingen mogelijk zijn. De kamer is uitgevoerd met een prachtige tegelvloer, witte wand- en plafondafwerking. De kamer is ondanks de grootte ook erg knus en gezellig door de vele extra's. Ideaal om met de familie rond de gashaard te vertoeven of in de tweede zithoek aan de achterzijde van de fluitende vogeltjes in de tuin te genieten. De grote raampartijen en lichtstraat zorgen voor tenslotte veel daglichttoetreding waardoor de lampen elke dag pas laat aan hoeven.

Hobbyruimte/winkel
Het bijzondere is dat deze woning van oorsprong een geschakelde winkelruimte heeft. Deze ruimte is momenteel als kapsalon ingericht en met ca. 50 m² groot van opzet en voor diverse andere doeleinden bruikbaar. Denk naast een winkel ook aan een beroep/kantoor aan huis, maar ook aan mantelzorg woning en extra speelkamer voor de woning. De winkel is voorzien van een nette tegelvoer met vloerverwarming. Daarnaast is er keuken en een toilet voor de klanten aanwezig.

Eerste verdieping

Overloop
Ook de eerste verdieping van dit huis is niet mis! De verdieping is ingedeeld met drie slaapkamers en een moderne badkamer.
De overloop is voorzien van een laminaatvloer met strakke wanden en plafond. De slaapkamers zijn vergelijkbaar afgewerkt.

Slaapkamers
Aan de voorzijde ligt één slaapkamer en aan de achterzijde liggen er nog twee. De slaapkamer aan de voorzijde heeft toegang tot het fraaie balkon wat over de gehele breedte van de woning loopt. De grootste slaapkamer is royaal van opzet en is met recht een master-bedroom te noemen.

Badkamer
De badkamer is een fijne en royale ruimte waar je de dag heerlijk kunt beginnen. Je vind hier een ruime douche, een hangcloset, een ligbad waar je kunt ontspannen na een lange dag en een stijlvol badmeubel met wastafel. Als kers op de taart beschikt de badkamer over vloerverwarming, zodat het hier altijd aangenaam warm blijft.

Tweede verdieping

Via de vaste trap bereik je de tweede verdieping waar je opnieuw verrast wordt door de ruimte. De overloop geeft toegang tot een slaapkamer en technische ruimte. Hier is ook een kast voor opbergruimte. 

Slaapkamer
De grootste ruimte op deze verdieping is een zeer royale kamer die moeiteloos kan dienen als extra slaapkamer of hobbyruimte. Aan beide zijde onder de dakschuinte is er extra opbergruimte gecreëerd.

De tweede kamer betreft de wasruimte/technische ruimte. Hier bevindt zich de C.V. combiketel installatie, wasmachine aansluiting en is ruimte voor extra opslag.

Tuin

Aan de voorzijde van de woning ligt een verzorgde voortuin. Hier vind je diverse beplanting, graszoden, een diepe inrit en veel parkeerplaatsen. De tuin vraagt weinig onderhoud en via het looppad bereik je zowel de voordeur als de achterom. Bijzonder; de woning bezit een dubbele carport en een 10m diepe garage.

Achtertuin
De achtertuin is royaal en biedt alle ruimte om te genieten van het buitenleven. De tuin is gelegen op het oosten en biedt optimale privacy. De tuin beschikt over meerdere terrassen die via verharde paden met elkaar zijn verbonden. De tuin is door de aanleg van de beplanting en groen speels ingericht.

Bijzonderheden

- Vrijstaande woning op toplocatie in het centrum van Reusel
- Groot perceel van 644 m² met brede achtertuin op het oosten
- 204 m² woonoppervlak
- Winkelruimte van bijna 50 m²
- Unieke ondernemerskansen!
- Royale praktijkruimte met eigen entree en voorzieningen
- Dubbele garage, carport en parkeerruimte voor meer dan 5 auto’s
- Ideaal voor gezinnen én ondernemers met beroep aan huis
- Het betreft nr. 2 en nr. 4.

Maak jouw woon (en ondernemers)wensen waar en neem snel contact op!

Kenmerken