Beschrijving

Dit is zo'n huis waar je direct verliefd op wordt!
Zo’n woning waar je binnenkomt en meteen denkt: ja hoor, dit is precies wat we zochten. Modern, royaal én klaar voor de toekomst. Je hoeft enkel nog je koffers te pakken, sleutels in ontvangst te nemen en wonen maar.

Deze moderne tweekapper uit 2016 is tot in de puntjes verzorgd. Ideaal voor gezinnen die op zoek zijn naar extra ruimte, binnen en rondom de woning.
Ook aan duurzaamheid is gedacht bij deze woning, de warmtepomp (2023) en 21 zonnepanelen (2022) boosten het energielabel naar A+++!

De woning is gelegen op een fantastische plek, met aan de voorzijde uitzicht over het groen en een speelveldje voor de kinderen.

Eenmaal binnen stap je een royale doorzon kamer in met aansluitend een moderne open keuken.
En dan de inpandige garage, wat een extra bonus is dit! Deze fijne volledig geïsoleerde ruimte is ideaal voor een speelkamer, hobbyruimte of als opslag.

Boven vind je nog vier fijne slaapkamers, een apart toilet en een luxe badkamer. De open indeling op zolder zorgt ervoor dat jij deze nog volledig naar eigen wens kan gebruiken. Denk aan een extra thuiswerkplek, extra slaapkamer(s) of een chillruimte.

En dan die heerlijke achtertuin...
Deze royale zonnige achtertuin is gelegen op het zuiden en beschikt over twee overkappingen, zodat jij elke dag optimaal kunt genieten van de fijne zonnestralen in je tuin. 

De ligging van deze woning is dan ook weer een extra pluspunt, gelegen op een hoekperceel in een zeer rustige en kindvriendelijke wijk. Er liggen twee scholen praktisch om de hoek en binnen een paar minuten sta je in het centrum van Reusel.

Kom snel kijken en ervaar zelf wat deze woning allemaal biedt. Dus waar wacht je nog op?

Indeling

Aan de linkerzijde van de woning beschik je over een eigen royale oprit en middels aangelegde voortuin en looppad bereik je voordeur van deze woning.

Entree
Welkom binnen, de entreehal is voorzien van een moderne pvc- vloer in houtlook motief, stucwerk op wanden en plafond. De hal biedt toegang tot het toilet met hangcloset en fonteintje, meterkast, garderobenis, trapopgang naar de eerste verdieping en de woonkamer. 

Keuken
Deze moderne keuken is gelegen aan de voorzijde van de woning met vrij uitzicht over de groene omgeving en beschikt over een royale hoekopstelling. De donkere kleur van het werkblad en de lichte kasten zorgt voor een frisse en moderne uitstraling terwijl de kastenwand in houtlook tinten een warm en sfeervol contrast biedt. De keuken is van alle gemakken voorzien, met een inductiekookplaat, afzuigkap, vaatwasser, spoelbak met Quooker kraan en koelkast. De inbouwkast is voorzien van een combi-oven en extra kastruimte, ideaal om hier al jouw servies en keukengerei in op te bergen.  

Woonkamer
Wat een heerlijke plek! Deze gezellige, sfeervolle woonkamer is voorzien van pvc- vloer in houtlook motief, strakke wanden en plafonds met een sierlijst. In de woonkamer is een ruime zithoek gesitueerd waar je na een lange dag heerlijk tot rust kunt komen. Daarnaast is er voldoende ruimte om een royale eethoek te plaatsen, voor gezellige diners. Door de vele raampartijen en de schuifpui naar de tuin treedt er veel daglicht binnen en voel je de verbinding met buiten! Vanuit de woonkamer bereik je de inpandige garage en de provisiekast.

Bijkeuken
De bijkeuken is volledig geïsoleerd en voorzien van vloerverwarming en daardoor ook geschikt voor meerdere doeleinden. Ideaal als speelkamer voor de kinderen of als hobbyruimte. In de inbouwkast vind je de witgoedaansluitingen met daarnaast een aparte wastafel met mengkraan. Via de inpandige garage heb je direct toegang tot de achtertuin.

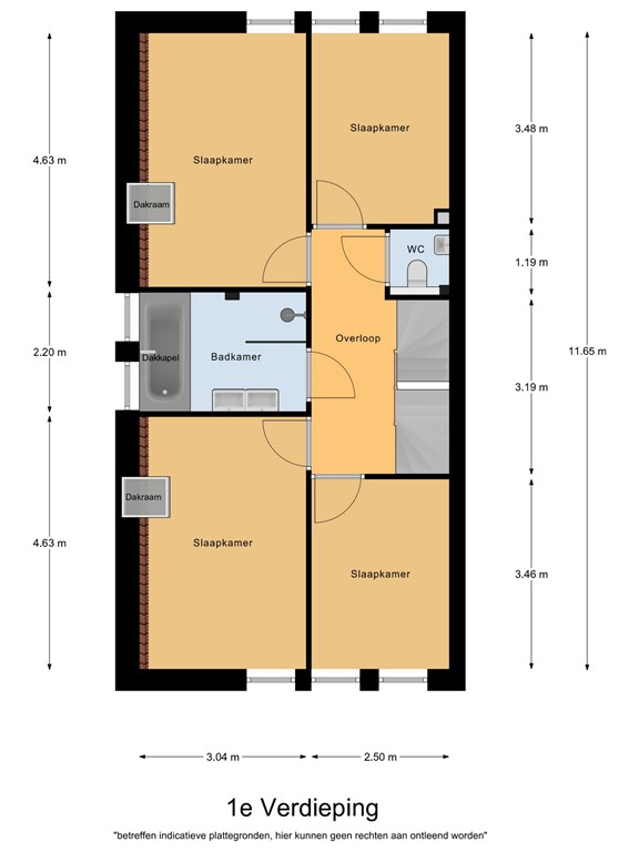
Eerste verdieping

Ruime overloop met toegang tot de tweede verdieping, 4 slaapkamers, luxe badkamer en separaat toilet. De gehele verdieping is netjes afgewerkt met een laminaatvloer, stucwerk op wanden en plafonds en beschikt over vloerverwarming-en koeling.

Slaapkamers
Aan de voorzijde vind je de masterbedroom die genoeg ruimte biedt voor een tweepersoonsbed. Daarnaast is deze kamer voorzien van een fraaie maatwerk inbouwkast. De tweede slaapkamer is fijn qua formaat en biedt ruimte voor een eenpersoonsbed, kledingkast en bureau. De slaapkamers aan de achterzijde, zijn identiek aan de kamers van de voorzijde. 
Alle slaapkamers zijn voorzien van kunststof kozijnen met draai-kiep functie.

Badkamer
Moderne badkamer die deels betegeld is en deels voorzien is van stucwerk. De badkamer beschikt over een royale inloopdouche met glazen scheidingswand, ruim ingebouwd ligbad en een badmeubel met wastafel en dubbele kranen. Door de dakkapel is deze ruimte extra licht en zorgt voor voldoende ventilatie.

Toilet
Deels betegelde toiletruimte voorzien van hangcloset.

Tweede verdieping

Middels vaste trap is de tweede verdieping te bereiken. Deze verdieping is netjes afgewerkt en bestaat nu uit één royale open ruimte. Met een paar eenvoudige aanpassingen maak je hier moeiteloos een extra slaapkamer, werkplek of hobbyruimte van.

Daarnaast is er een aparte technische ruimte met de Hybridewarmtepomp (2023) en de omvormer voor de zonnepanelen.

Tuin

Voortuin
De voortuin is netjes en onderhoudsvriendelijk aangelegd en bestaat uit siergrind en beplanting. Links langs de woning bevindt zich een eigen oprit, welke plaats biedt voor 2 auto's.

Achtertuin
Deze gezellige achtertuin is goed onderhouden en aangelegd met gras, diverse beplanting en sierbestrating. De royale achtertuin is gelegen op het zonnige zuiden en beschikt over een eigen achterom en biedt veel privacy. De tuin beschikt verder over een praktische en fijne overkapping met lichtstraat en ingebouwde spotjes, ideaal voor de lange zomeravonden samen met vrienden en familie. Zit jij liever in de ochtend te genieten van de zon onder het genot van een kop koffie? Geen probleem, achterin de tuin is nog een extra zithoek met overkapping gemaakt waar jij de eerste zonnestraaltjes van de dag kunt meepakken.
Verder beschikt de tuin nog over een fraaie berging, ideaal voor het opslaan van extra spullen of het stallen van de fietsen.

Bijzonderheden

- Bouwjaar 2016
- Twee onder één kap woning 
- Inpandige garage en ruime berging in de tuin
- Moderne keuken & badkamer
- Royale en lichte woning
- 4 slaapkamers op de eerste verdieping
- Energielabel A+++
- Hybride warmtepomp 2023
- 21 zonnepanelen 2022
- Instapklare woning 
- Royale achtertuin gelegen op het zuiden
- 2 overkappingen in de tuin
- Ideale gezinswoning
- Gelegen op toplocatie met vrij uitzicht aan de voorzijde
- Rustige ligging nabij twee basisscholen
- Groen/speelveldje voor de deur

Ben jij nu ook zo enthousiast geworden? Wacht dan niet langer en plan direct een bezichtiging in!

Kenmerken