| Adres: | Gagelveld 10, 5541 GP Reusel |
| Prijs | € 810.000,- k.k. |
| Type object | Woonhuis, eengezinswoning, vrijstaande woning |
| Perceeloppervlakte | 419 m² |
| Woonoppervlakte | 223 m² |
| Aanvaarding | In overleg |
| Status | Verkocht onder voorbehoud |
Uniek aanbod in De Velden! Zó komen ze zelden voorbij… In de populaire wijk De Velden, op een steenworp van de basisschool én met een speelveldje pal voor de deur, staat deze zeer royale vrijstaande woning te koop. En geloof ons: hier wil je wonen! Met een woonoppervlakte van maar liefst 223 m² heb je hier écht alle ruimte die je nodig hebt. De woning is de afgelopen jaren volledig gemoderniseerd; modern, stijlvol en helemaal in de trends van nu! Wat heeft deze woning allemaal te bieden? Een royale living, een ruime leefkeuken, vier slaapkamers op de eerste verdieping met een luxe en ruime badkamer en de tweede verdieping nog één extra slaapkamer en praktisch bergruimte. En dan buiten.... een heerlijke zonnige achtertuin welke beschikt over een dubbele overkapping, zodat jij het hele jaar door kan genieten! Woningen in deze wijk komen zelden vrij, dus grijp je kans. Dit is er eentje die je niet wilt missen!
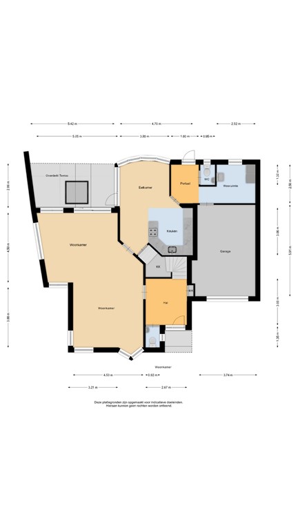
Entree Kom snel binnen en ontdek wat deze royale woning jou allemaal te bieden heeft! Eenmaal binnen gekomen wordt je warm ontvangen door de ruime entreehal, welke toegang biedt tot de meterkast, een volledig betegeld modern toilet voorzien van hangcloset en fonteintje, vaste trapopgang naar de eerste verdieping en de doorgang naar de living. De gehele entreehal is voorzien van vloerverwarming, een nette tegelvloer en gestucde wanden en plafond. Living Een lichte, royale living waar jij al je ideeën in kwijt kunt. Want met zóveel ruimte zijn er volop indelingsmogelijkheden. Hier kun je blijven variëren, hoe leuk is dat? Aan de voorzijde staat nu een riante eettafel waar je met gemak met het hele gezin aanschuift. Perfect voor die lange spelletjesavonden, gezellige etentjes of gewoon lekker bijkletsen met vrienden. Ruimte genoeg om iedereen een plek te geven! Doorlopend naar achteren is er plek zat voor een U- of hoekbank en een fijne zithoek waar je heerlijk kunt relaxen. En het mooiste? Daarachter blijft er zelfs nog ruimte over voor een speelhoek voor de kids. Alles overzichtelijk en lekker bij elkaar. Dankzij de schuifpui aan de achterzijde én de grote ramen aan de zij- en voorkant stroomt het daglicht hier rijkelijk binnen. De tegelvloer (2017) met vloerverwarming maakt het extra comfortabel, wel zo fijn in de winter. Vanuit de living loop je zo door naar de separate keuken. Keuken Dankzij de grote raampartijen aan de tuinzijde kook jij hier altijd met uitzicht. Hoe fijn is dat? Ja, dat is hier allemaal geregeld! De keuken is in 2018 compleet vernieuwd en dat zie je meteen. Een prachtige houten keuken met een donker werkblad geeft de ruimte een stoere, warme look. Alles wat je nodig hebt is aanwezig: een inductiekookplaat met afzuigkap, combi-oven, vaatwasser, royale koelkast en natuurlijk een spoelbak met mengkraan én Quooker. Hier zet je met gemak de lekkerste maaltijden op tafel.. En dan die kastruimte… genoeg plek om al je pannen, servies en keukengerei netjes op te bergen. Naast de keuken vind je ook nog een handige trapkast, ideaal voor je voorraad. Vanuit de keuken stap je via een loopdeur zó de achtertuin in, direct onder de overkapping aan huis. Hoe lekker is dat? Gezellig buiten eten, snel even iets pakken of gewoon makkelijk schakelen tussen binnen en buiten. De keuken is bovendien voorzien van dezelfde strakke tegelvloer met vloerverwarming als de living en de wanden zijn in augustus nog volledig strak gestuukt. Vanuit hier heb je ook directe toegang tot de bijkeuken en praktische kelderkast. Bijkeuken De bijkeuken is royaal van opzet en biedt volop ruimte om hier extra jassen, tassen of schoenen kwijt te kunnen. Ook bevindt zich hier nog een extra toilet, welke ook geheel betegeld is en voorzien van hangcloset en fonteintje. Doorlopend naar achteren bevindt zich hier de wasruimte, waar je de witgoed aansluitingen vindt en een uitstortgootsteen, extra handig. Via de bijkeuken heb je toegang tot de inpandige garage en het buitenleven. Garage De royale inpandige garage is volledig geïsoleerd en daarmee ook multifunctioneel te noemen. Deze ruimte leent zich dan ook uitstekend voor de hobbyist, de handige klusser of gewoon als opslagruimte of natuurlijk om de auto binnen te parkeren.
Overloop Middels degelijke vaste trap bereik je de royale overloop met toegang tot vier slaapkamers, een badkamer en de vaste trapopgang naar de tweede verdieping. Alle slaapkamers zijn voorzien van een laminaatvloer en gestucde wanden en plafonds. De overloop beschikt ook nog over een airco die kan verwarmen en koelen. Slaapkamers Deze verdieping telt vier slaapkamers met variërende grootte. Twee slaapkamers zijn gelegen aan de voorzijde van de woning waarvan de masterbedroom de grootste slaapkamer is. Hier is genoeg ruimte voor een tweepersoonsbed en vaste kast. De tweede slaapkamer is ideaal als kinderkamer en biedt dan ook ruimte om een bed, kledingkast en bureau in kwijt te kunnen. De derde slaapkamer is gelegen naast de badkamer en wordt op dit moment in gebruik genomen als kinderkamer. Deze slaapkamer is eveneens royaal van opzet en biedt dan ook voldoende ruimte om een tweepersoonsbed, kledingkast en bureau te plaatsen. Slaapkamer vier is gelegen boven de garage en is daarmee ook multifunctioneel te noemen. Deze kamer kan ideaal dienen als slaapkamer maar ook als speelkamer voor de kinderen, hobbykamer of thuiswerkplek. Via deze ruimte heb je direct toegang tot de inloopkast, een droom van elke vrouw! Ideaal, zodat jij hier netjes al jouw kleding in kwijt kunt. Maar deze ruimte kan ook gebruikt worden voor meerdere doeleinden; denk aan kantoorruimte of thuiswerkplek. Alle slaapkamers zijn voorzien van kunststof kozijnen met dubbele beglazing, draai-kiep functie en horren. Badkamer De luxe badkamer is compleet vernieuwd in 2021 en ook dan op geheel moderne wijze afgewerkt en voorzien van alle gemakken. Een heerlijk ligbad, ideaal voor een ontspannen moment of de kinderen in bad doen. Een royale inloopdouche voorzien van een luxe glaswand met zwarte details, een hangcloset en een royaal badmeubel met dubbele waskom en mengkranen. Deze badkamer biedt dan ook volop ruimte voor het hele gezin! En als kers op de taart, is deze badkamer ook nog voorzien van vloerverwarming. Zodat jij ook in de koude maanden de ochtend heerlijk kunt beginnen.
Middels vaste trapopgang bereik je de overloop van de tweede verdieping, welke toegang biedt tot een slaapkamer en bergruimte. Slaapkamer De slaapkamer is zeer royaal van opzet en biedt dan ook weer meer als voldoende ruimte om een tweepersoonsbed te plaatsen en een bureau en kledingkast. Onder de schuine kanten aan beide zijde is er nog volop kastruimte beschikbaar, ideaal voor de opslag. Daarnaast beschikt de kamer over een half ronde raampartij aan de voorzijde en een dakraam, zodat er altijd voldoend daglicht binnenschijnt en optimaal kan ventileren. Op dit moment wordt deze kamer gebruikt als hobbykamer, maar is makkelijk te gebruiken als slaapkamer. De kamer is afgewerkt met een laminaatvloer en strakke wand- en plafond afwerking. Berging De bergruimte is een ideale ruimte om je al je seizoensspullen in op te slaan.
Voortuin De voortuin is netjes aangelegd en grotendeels voorzien van siergrind met beplanting. Aan de rechterzijde van de woning bevindt zich een eigen oprit met toegang tot de garage en de voordeur van de woning. Ligging En dan de ligging… die is echt top! Deze woning is gelegen in een rustige, autoluwe straat waar kinderen nog veilig kunnen spelen. Voor de deur ligt dan ook een fijn speeltuintje, de basisschool is op loopafstand en binnen vijf minuten sta je in het bruisende centrum van Reusel. Zin in wat natuur? Ook de bossen liggen op slechts een paar minuten wandelen. Een ideale plek voor gezinnen; kindvriendelijk, rustig en met alles binnen handbereik. Hier voel je je direct thuis! Achtertuin Welkom in deze prachtige achtertuin, waar je volop kunt genieten en waar je niks te kort komt! Met maar liefst twee overkappingen zit jij hier het hele jaar door goed. De overkapping aan de woning is bovendien voorzien van een op maat gemaakt zeil, zodat je ook op koudere avonden lekker buiten kunt zitten. Warmtelampen aan, dekentje erbij en jij beleeft hier een fijne en cosy avond met vrienden en familie. Daarnaast is de tuin voorzien van kunstgras, welke vorig jaar nieuw is aangelegd. Ideaal voor de kinderen, zonder dat jij je zorgen hoeft te maken over kale plekken of modderige schoenen. Achterin de tuin vind je de tweede overkapping, compleet met een buitenbar. BBQ aan, drankjes koud, en het genieten kan beginnen!! Er is altijd wel een plekje in de tuin waar jij in de zon of juist in de schaduw kunt zitten. De tuin beschikt ook nog over een praktische berging, ideaal voor fietsen, tuinkussens en andere tuinspullen in op te slaan. Dankzij de dubbele poort rijd je zelfs met een aanhanger zo de achtertuin in, wel zo handig! Alles wat je nodig hebt om te genieten vind je hier!
- Bouwjaar 2000 - Flink gemoderniseerd en verduurzaamd sinds 2017 - Energielabel A - 223 m² woonoppervlakte & 928 m³ inhoud - Royale woonkamer met ruime zitkamer - Luxe keuken - Vijf slaapkamers - Kunststof kozijnen en isolerende beglazing - Royale inpandige garage - Nefit CV ketel 2020 - 12 zonnepanelen Verbeteringen door de jaren heen: - Begane grond nieuwe tegelvloer 2017 - Toiletten begane grond gerenoveerd 2017 - Nieuw laminaat eerste verdieping + zolder 2017 - Nieuwe keuken 2018 - Nieuwe badkamer 2020 - Airco 2020 - Nefit cv-ketel 2020 - Schilderwerk buiten 2022 - Achtertuin verbouwd 2022 - Kunstgras achtertuin 2024 - Platdak boven de garage vernieuwd 2024 - Platdak boven keuken en overkapping vernieuwd 2025 Zie jij jezelf hier wel wonen? Maak dan snel een afspraak voor een bezichtiging!
| Vraagprijs | € 810.000,- k.k. |
| Status | Verkocht onder voorbehoud |
| Aanvaarding | In overleg |
| Aangeboden sinds | Woensdag 8 oktober 2025 |
| Laatste wijziging | Woensdag 12 november 2025 |
| Type object | Woonhuis, eengezinswoning, vrijstaande woning |
| Soort bouw | Bestaande bouw |
| Bouwperiode | 2000 |
| Dakbedekking | Bitumen Dakpannen |
| Type dak | Zadeldak |
| Isolatievormen | Dakisolatie Dubbel glas HR-glas Muurisolatie Vloerisolatie Volledig geïsoleerd |
| Perceeloppervlakte | 419 m² |
| Woonoppervlakte | 223 m² |
| Inhoud | 928 m³ |
| Oppervlakte overige inpandige ruimten | 23 m² |
| Oppervlakte externe bergruimte | 9 m² |
| Oppervlakte gebouwgebonden buitenruimte | 18 m² |
| Aantal bouwlagen | 3 |
| Aantal kamers | 6 (waarvan 5 slaapkamers) |
| Aantal badkamers | 1 (en 1 apart toilet) |
| Ligging | Aan rustige weg In woonwijk Nabij school Vrij uitzicht |
| Type | Achtertuin |
| Hoofdtuin | Ja |
| Oriëntering | Noord west |
| Heeft een achterom | Ja |
| Staat | Prachtig aangelegd |
| Tuin 2 - Type | Voortuin |
| Tuin 2 - Oriëntering | Zuidoost |
| Tuin 2 - Staat | Prachtig aangelegd |
| Energielabel | A |
| CV ketel | Nefit |
| Warmtebron | Gas |
| Bouwjaar | 2020 |
| Combiketel | Ja |
| Eigendom | Eigendom |
| Aantal parkeerplaatsen | 2 |
| Warm water | CV-ketel |
| Verwarmingssysteem | Airconditioning Centrale verwarming Mogelijkheid voor open haard Vloerverwarming |
| Ventilatie methode | Mechanische ventilatie Natuurlijke ventilatie |
| Badkamervoorzieningen | Dubbele wastafel Inloopdouche Ligbad Toilet Vloerverwarming Wastafelmeubel |
| Parkeergelegenheid | Inpandige garage |
| Heeft airco | Ja |
| Heeft een frans balkon | Ja |
| Glasvezelaansluiting aanwezig | Ja |
| Tuin aanwezig | Ja |
| Heeft een garage | Ja |
| Heeft schuur/berging | Ja |
| Heeft een dakraam | Ja |
| Heeft een schuifpui | Ja |
| Heeft zonnepanelen | Ja |
| Heeft ventilatie | Ja |
| Kadastrale aanduiding | Reusel-De Mierden F 767 |
| Perceeloppervlakte | 419 m² |
| Omvang | Geheel perceel |
| Eigendomsituatie | Eigen grond |