Beschrijving

Welkom aan de Lokbossen 15 te Reusel! Deze gemoderniseerde twee-onder-een-kap woning ligt op een goede locatie, is compleet verduurzaamd en is direct te betrekken! De woning is de afgelopen jaren stevig onder handen genomen en beschikt op de begane grond over een royale aanbouw, een luxe inbouwkeuken en is op moderne wijze afgewerkt. Op de eerste verdieping tref je door de opbouw drie grote slaapkamers, een luxe badkamer en seperaat toilet. De tweede verdieping bereik je middels een vaste trap en biedt nog tal van mogelijkheden waaronder een vierde slaapkamer, hobby of thuiswerkplek. 

Met ruim 300 m² aan perceel beschikt deze woning ook over een heerlijke zonnige achtertuin met diverse overkappingen, een grote multifunctionele garage en berging. Qua verduurzaming is deze woning perfect op orde; het volledige isolatiepakket is aanwezig, overal HR ++ beglazing en 22 zonnepanelen! 
Kortom, koffers pakken en verhuizen maar.

Indeling

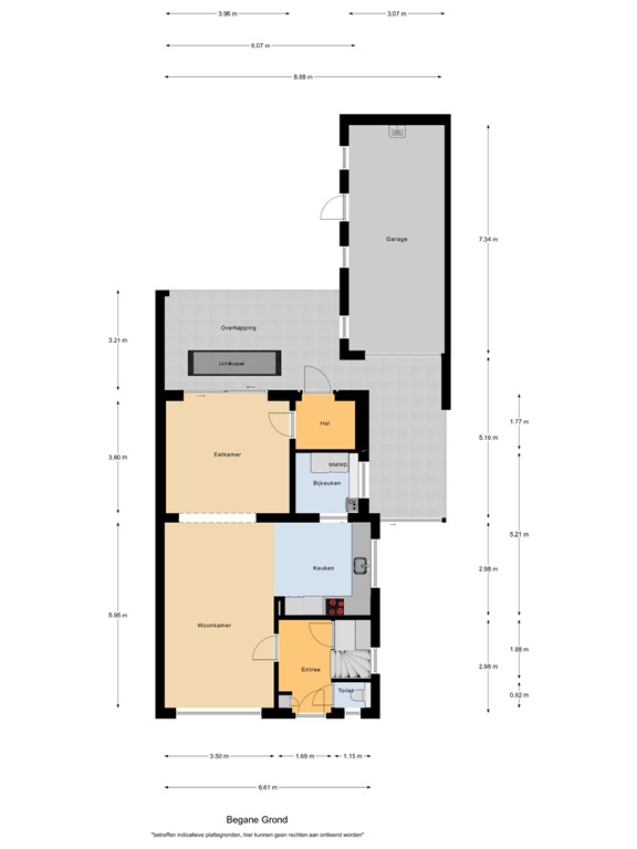
Entree en toilet
Via de eigen oprit bereik je de voordeur van deze woning. Liever achterom? Rechts langs de woning zit een grote houten poort en bereik je de achtertuin en garage. De entreehal is voorzien van een mooie houtlook tegelvloer met vloerverwarming, gestuukte wanden-en plafonds. De hal beschikt over een vernieuwde meterkast, een handige trapkast en een ruim modern betegeld toilet voorzien van hangcloset. Vanuit de hal heb je toegang tot de eerste verdieping en het woongedeelte.

Woonkamer 
Wat een heerlijke ruimte om te verblijven. De woonkamer is fraai afgewerkt met een prachtige houtlook tegelvloer met vloerverwarming, strakke wanden en plafonds. Voorin de woonkamer is ruimte voor een gezellige zithoek voorzien van grote raampartij wat zorgt voor veel daglicht in de ruimte. In het middelste gedeelte is er genoeg ruimte voor een speelhoek voor de kinderen. In de royale aanbouw aan de achterzijde is er genoeg ruimte voor een 8-persoons tafel wat ideaal is voor te borrelen of te eten met familie en vrienden. Middels schuifpui heb je direct toegang tot de achtertuin.

Keuken
Centraal in de woonkamer bevindt zich de keuken. Deze is opgesteld in een praktische L-opstelling en uitgevoerd met lichte kasten en een donker werkblad. De keuken beschikt over een 4-pits inductiekookplaat, een afzuigkap, een vaatwasser, een spoelbak met mengkraan, een combimagnetron en een koelkast. Een fijne, degelijke en functionele keuken met volop werk- en bergruimte

Bijkeuken
Vanuit de keuken heb je via een schuifdeur toegang tot de bijkeuken. Ook hier is de houtlook tegelvloer doorgelegd. De ruimte beschikt over de witgoedaansluitingen en biedt daarnaast extra ruimte voor bijvoorbeeld een extra koelkast, diepvries of het opbergen van huishoudelijke spullen. Tevens bevindt zich hier de Remeha cv-ketel.

Eerste verdieping

Via het vaste trappenhuis bereiken we de eerste verdieping. Deze verdieping is mede dankzij de opbouw heerlijk ruim en afgewerkt met een warme houten laminaatvloer, strakke wanden en plafonds met inbouwspots. De overloop geeft toegang tot het separate toilet, drie slaapkamers en de badkamer.

Slaapkamers
Deze verdieping telt drie slaapkamers met varriende grootte. Alle slaapkamers zijn ruim opgezet en voorzien van kunststof kozijnen met HR ++ beglazing en rolluiken! Slaapkamer één is gelegen aan de voorzijde en lekker ruim opgezet. Deze kamer beschikt over een vaste inbouwkast. Slaapkamer twee is bevindt zich aan de achterzijde en is nagenoeg even ruim en biedt voldoende ruimte voor een tweepersoonsbed. 
De master bedroom ligt eveneens aan de achterzijde, boven de uitbouw en is de grootste slaapkamer van de woning. Deze slaapkamer beschikt nog over een airco en geeft een prachtig uitzicht op de achtertuin.

Badkamer
De badkamer is uitgevoerd als een luxe ruimte en is volledig betegeld. Zo beschikt de badkamer over vloerverwarming, een zeer royale inloopdouche met glazen wand, een groot badmeubel met dubbele wastafel en dubbele mengkranen. Daarnaast is de badkamer voorzien van mechanische ventilatie.

Toilet
Aan de voorzijde van de woning zit nog een separaat toilet voorzien van hagncloset.

Tweede verdieping

Via de vaste trap bereiken we de tweede verdieping. Deze verdieping is verrassend ruim en beschikt over twee grote nieuwe Velux dakramen  (2020) wat zorgt voor veel lichtinval. De ruimte is fraai afgewerkt met een nette donkere laminaatvloer en is uitstekend geschikt alsvierde slaapkamer, hobbyruimte of extra bergruimte.

Tuin

Voortuin
De voortuin is verzorgd aangelegd met nette bestrating en groene plantenborders, wat zorgt voor een rustige en uitnodigende uitstraling. Aan de rechterzijde bevindt zich de eigen oprit met toegang tot de achterom.

Achtertuin
Wat een heerlijke achtertuin heeft deze woning. Met optimale privacy, ligging op het westen beleef je hier plezier voor het hele gezin. De tuin is netjes aangelegd met een groen gazon, verzorgde bestrating en diverse plantenbakken. Direct aan de woning is een prachtige Douglas overkapping geplaatst, afsluitbaar met zeilen en daardoor wind- en waterdicht. Dankzij de grote lichtstraat blijft ook binnen in de woning volop daglicht aanwezig. Deze ruimte wordt momenteel gebruikt als speelruimte voor de kinderen maar is uiteraard multifunctioneel inzetbaar.

Aan de achterzijde bevindt zich een tweede, royale overkapping met zwart gepotdekselde houten latten en een geïntegreerde berging. Deze overkapping is voorzien van een tv-aansluiting, wateraansluiting, meerdere lichtpunten en is een heerlijke plek om te toeven! Deze overkapping biedt genoeg ruimte voor een heerlijke loungebank met een fraai uitzicht over de achtertuin. 

Garage
Via de tuin is de garage bereikbaar. Deze is aan de buitenzijde fraai gepotdekseld en sluit perfect aan bij de stijl van de overkappingen. De garage is royaal van opzet en ideaal voor opslag, hobby’s of het plaatsen van een werkbank. De ruimte beschikt over een wasbak met kraan, hardhouten raamkozijnen voor daglicht, een aparte stoppenkast, krachtstroom en de omvormer van de zonnepanelen. Aan de voorzijde, tegen de woning aan, bevindt zich bovendien een carport waar je de auto droog kunt parkeren.

Bijzonderheden

- Bouwjaar 1964
- Instapklare twee-onder-kap woning
- 123 m² gebruiksoppervlakte & 31 m² extern bergruimte
- 31 m² gebouwgebonden buitenruimte
- Perceeloppervlakte 328 m²
- Woning is volledig geisoleerd
- 22 zonnepanelen geinstalleerd
- Woning is uitgebouwd & opgebouwd (2019)
- Begane grond & badkamer voorzien van vloerverwarming
- Kunststof kozijnen met HR++ 2020
- Eerste verdipeing voorzien van rolluiken (deels elektrisch)
- Nieuwe meterkast 2020
- Remaha CV ketel 2020
- Airco 2023
- Luxe inbouwkeuken 2020
- Moderne badkamer 2020
- Velux dakramen 2020
- Nieuwe hardhouten voordeur 2022
- Ruime garage 
- Dubbele overkapping
- Privacy biedende achtertuin op het westen

Opzoek naar een instapklare twee-onder-een-kap woning die compleet verduurzaamd is? Neem contact met ons op voor het maken van een afspraak.

Kenmerken