Beschrijving

Unieke kans in Reusel, royale bedrijfswoning met hallen op goede locatie gelegen!

Wil jij al langer wonen en werken combineren? Dan ben je op het juiste adres hier aan de Mierdseweg 47 in Reusel. Midden in een woonwijk vind je deze royale bedrijfswoning met multifunctionele bedrijfshal en opslagruimten (samen 794 m²)! 

De bedrijfshal bestaat uit meerdere units die ook in één geheel te zijn gebruiken, elke unit beschikt over een eigen entree. Zo kun je de hallen aanpassen aan jouw bedrijfsvoering. De bedrijfsruimte is de laatste jaren fors opgeknapt. Zo is het object voorzien van een nieuw geïsoleerd plat dak, nieuwe stroomaansluiting van 3 x 63A 50, zonnepanelen geplaatst (2022, 390 WP) en het buitenterrein van nieuwe bestrating met hemelwaterafvoersysteem. 

De woning zelf is royaal van opzet en biedt een ruime woonkamer met keuken, een praktische bijkeuken met kantoorruimte, vijf slaapkamers en een flinke badkamer.

Dankzij de veelheid aan mogelijkheden is dit het ideale object voor jouw ondernemersdromen!

Indeling

Stap binnen in deze ruime woning en ontdek snel hoeveel ruimte deze jou te bieden heeft.
De woning is zeer royaal van opzet en biedt volop leefruimte, en beschikt aan volop moderniseringskansen.

Welkom via de voordeur betreedt je deze woning, welke beschikt over een meterkast, inbouwkast en een trapopgang naar de eerste verdieping. 

Woonkamer
Zodra je de woonkamer binnen stapt, ervaar je het direct; wat een zee aan ruimte heb je hier! Deze L-vormige woonkamer biedt voldoende ruimte om hier diverse hoekjes te creëren. Een gezellige zithoek aan de voorzijde met een klassieke schouw en openhaard. Aan de achterzijde is er volop ruimte om een royale eettafel te plaatsen waar je kan genieten met de hele familie!
De ramen met roedes en het sfeervolle balkenplafond geven de ruimte net dat beetje extra karakter.
Daarnaast is de woonkamer voorzien van een tegelvloer en schoonmetselwerk wanden.

Keuken
Doorlopend naar achteren kom je in de ruime keuken terecht. Die wel wat gedateerd is maar wel voldoende mogelijkheden biedt om hier iets moois van te maken.
De keuken beschikt nog over mooie delfts blauwe tegeltjes tegen de wand, wat echt van die tijd was. Daarnaast beschikt het over een 4-pits gaskookstel, oven, afzuigkap, dubbele spoelbak met mengkraan en een koelkast. Ook is de keuken ruim genoeg om hier nog een aparte eettafel te plaatsen. 
Via de keuken heb je direct toegang tot de kelder, wat veel ruimte biedt voor extra opslag van al jouw voorraden.

Kelder
Via een trapafgang kom je in een manshoge kelderruimte van ca. 10 m². Deze ruimte is een fijne toevoeging voor het koel opslaan van proviand. Ook bevind zich hier een grondwaterpomp voor de wateraansluiting buiten.

Bijkeuken
Naast de keuken bevindt zich de bijkeuken welke voorzien is van witgoed aansluitingen, uitstortgootsteen en een handige inbouwkast om al jouw spullen netjes in op te bergen. Vanuit de bijkeuken bereik je het volledig betegeld toilet voorzien van closet en een fonteintje. 

Kantoorruimte
Doorlopend kom je terecht in de kantoorruimte, ideale ruimte om vanuit thuis nog even te werken of te gebruiken voor opslag.

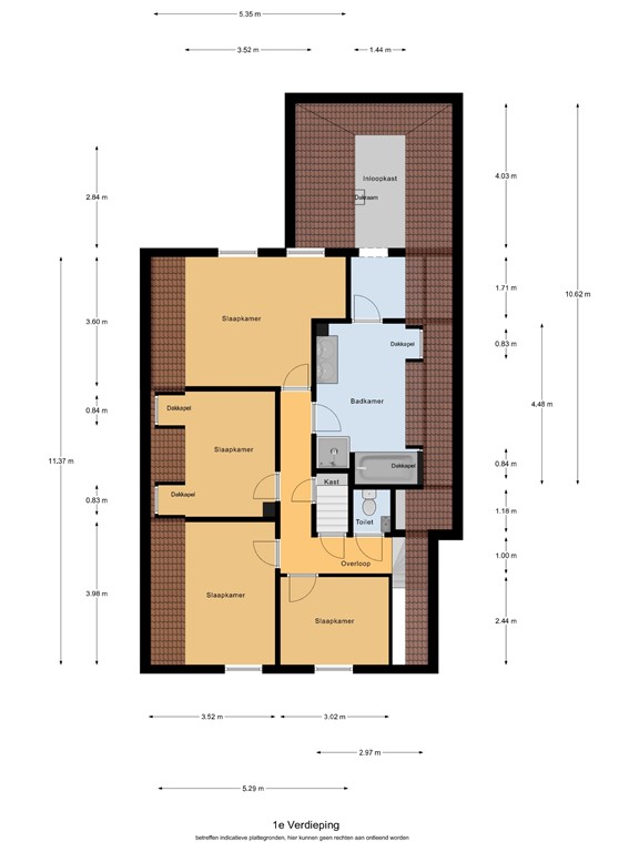
Eerste verdieping

Ook boven is er volop ruimte: maar liefst vijf slaapkamers en een flinke badkamer. De hele verdieping is in 2021 voorzien van een nieuwe pvc vloer. De gipsplaten zijn recentelijk bevestigd, het is aan de nieuwe eigenaar om deze af te werken. Via de overloop heb je toegang tot de vier slaapkamers, badkamer en een trapkast. 

Slaapkamers
De eerste verdieping telt vier ruime slaapkamers, welke verschillend van formaat zijn maar vergelijkbaar zijn in afwerking.
Twee slaapkamers zijn gelegen aan de voorzijde, de eerste kamer is een fijne ruimte en biedt voldoende plaats voor een éénpersoonsbed en kledingkast. Deze ruimte kan ook functioneren als kantoorruimte of babykamer. Slaapkamer twee is royaler qua opzet en beschikt over een nieuwe moderne inbouwkast. 
Slaapkamer drie beschikt eveneens over een moderne inbouwkast, maar ook over twee dakkapellen voor extra licht en ventilatie. Slaapkamer vier, de masterbedroom, is zeer ruim van opzet en biedt meer dan voldoende ruimte om een groot bed te plaatsen, kledingkast of bureau. 

Badkamer
Deze royale badkamer beschikt over de juiste ruimte en indeling om hier iets moois van te maken. De badkamer beschikt over een groot badmeubel met dubbele wasbak, een douche, ligbad en voldoende opbergruimte.

Loop je vanuit de badkamer door naar achteren, dan kom je in een praktische tussenruimte waar ook de aansluitingen voor het witgoed zijn. 
Aansluitend vind je een royale inloopkast, waar jij al je kleding en schoenen in kwijt kunt.

Tweede verdieping

Via een vaste trapopgang bereik je de tweede verdieping, welke opgedeeld is in twee ruimtes.
Zodra je de trap oploopt, loop je direct de slaapkamer in, welke voldoende ruimte biedt voor een tweepersoonsbed, bureau en een kledingkast. Tevens beschikt deze ruimte over twee dakramen voor het nodige daglicht en ventilatie. 

Achter de slaapkamer bevindt zich nog een extra opbergruimte, ideaal voor seizoens spullen of andere spullen. Hier vind je ook de cv-installatie (Atag 2020).

Tuin

Voortuin
De voortuin is keurig aangelegd en onderhoudsvriendelijk. Voorzien van siergrind en diverse groene beplanting aan de straatzijde. Aan de rechterzijde van de woning ligt een eigen parkeerhaven die samen met de oprit aan de linkerzijde plaatst biedt voor een aantal auto's.

Achtertuin
De achtertuin is verrassend ruim en onderhoudsvriendelijk aangelegd. Er is voldoende ruimte om diverse zitjes te creëren, zodat je op elke moment van de dag kunt genieten van de zon. Ook aan de zomeravonden is gedacht, mede door de nieuwe overkapping die is geplaatst. Hier geniet je volop met familie en vrienden tot in de late uurtjes. Daarnaast is er ook een nieuwe schutting geplaatst (2022).

Bijzonderheden

Kenmerken 
- Bouwjaar bedrijfswoning 1983
- Volop ruimte binnen en buiten
- Bedrijfsruimte delen 794 m² (te verdelen in meerdere units)
- Woonoppervlakte 189 m²
- Perceeloppervlakte 1852 m²
- Energielabel C (nog exclusief 50 zonnepanelen 2022)
- Hardhouten kozijnen met isolerende beglazing
- Atag cv-ketel 2020

Vernieuwingen aan de woning:
- Nieuwe  pvc vloer eerste verdieping 2022
- Nieuwe riolering aangelegd 2022
- Overkapping tuin + schutting tuin 2022
- Nieuwe boeiboorden 2023
- Hardstenen dorpels geplaatst onder de kozijnen 2023
- Zijkant dakkapel voorzien van trespa 2023
- Gipsplaten plafond geplaatst 2025

Vernieuwingen aan de bedrijfshallen:
- Dak vernieuwd deels 2022 + deels 2025 
- Boeiboorden 2022
- Dakisolatie vernieuwd 2022
- Boeiboorden vervangen 2022
- Nieuwe roldeuren 2022
- Riolering vernieuwd 2022
- Bestrating vernieuwd 2022
- Stroomaansluiting verhoogd naar 3x63A

- Bij het onherroepelijk worden van de koopovereenkomst dient 10% van de koopsom bij de notaris gestort te worden.

Kenmerken