Beschrijving
Echt te gek! Deze geweldig ruime tussenwoning met energielabel A en 8 zonnepanelen biedt met bijna 130 m² woonoppervlakte alle ruimte voor het hele gezin.
Wie wil dat nou niet: een leefruimte van ruim 52 m² op de begane grond, waar bij binnenkomst direct de lichte, sfeervolle woonkamer met gezellige open haard opvalt. De keuken met spoeleiland loopt over naar de zonnige achtertuin, compleet met royale overkapping. Perfect voor zomerse borrels en lange avonden. Op de verdiepingen vind je vier ruime slaapkamers en een moderne badkamer, en met een toplocatie vlakbij een speelveld en park is dit écht de ultieme gezinswoning.
Nieuwsgierig geworden? Geweldig! Plan snel een afspraak en we laten je deze fantastische woning graag zien.
Laten we meteen een kijkje nemen naar de verbeteringen die de afgelopen jaren aan deze woning zijn uitgevoerd:
- Kunststof kozijnen met HR++ glas 2020 (m.u.v. dakraam en voordeur)
- Achtertuin aangepast en voorzien van kunstgras 2021
- Begane grond voorzien van nieuwe glazen industriële look binnendeuren 2022
- Voortuin vernieuwd 2023
- 8 zonnepanelen geïnstalleerd 2024
- Boeiboorden vervangen voor Trespa 2024
- Plafond zolder vanuit binnenuit na-geïsoleerd 2024
- Masterbedroom voorzien van airco 2024
- Schutting met de buren vernieuwd 2025
- Cv-ketel Nefit vernieuwd december 2025.
Indeling
Wat een fijne binnenkomer hier in de Steenstraat. Je rijdt met de auto rustig het autoluwe woonhofje in, waar openbare parkeergelegenheid aanwezig is. Eenmaal geparkeerd loop je zo richting de voordeur van deze té leuke woning.
Bij aankomst verschijnt direct een glimlach op je gezicht, dankzij de fris aangelegde voortuin met o.a. een mooie diversiteit aan groen in de plantenborders.
Entree
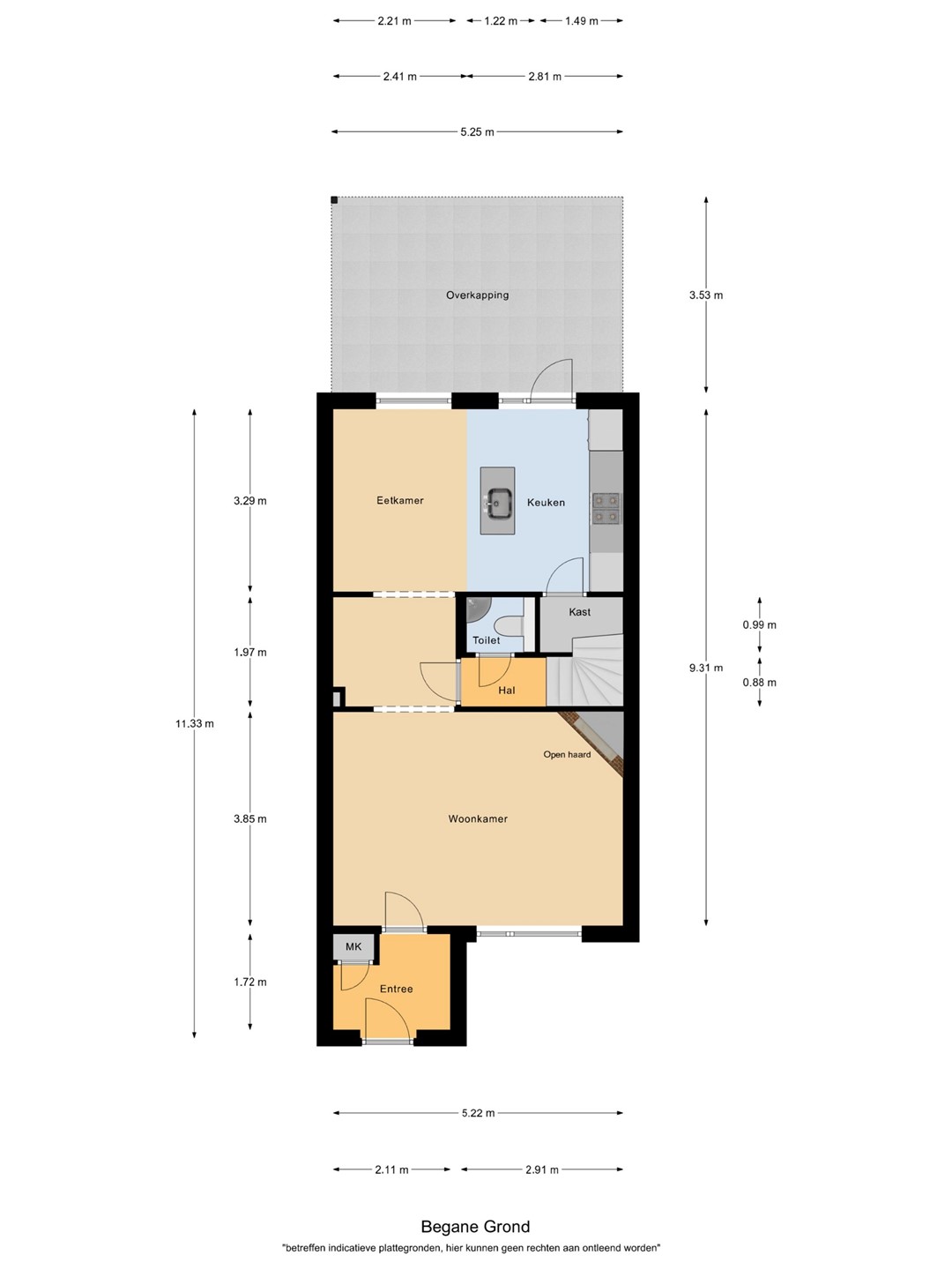
Welkom thuis. Zodra je binnenstapt voelt het goed. De hal is praktisch ingedeeld met ruimte voor de garderobe en meterkast, en nodigt je via de glazen staallook deur uit naar de woonkamer. Loop je mee?
Woonkamer
Geen recht-toe-recht-aan indeling en juist dat maakt dit huis zo leuk! Aan de voorzijde bevindt zich een heerlijke zitkamer, in het tussengedeelte is ruimte voor een fijne werkplek of speelhoek, en aan de tuinzijde vind je de tuingerichte leefkeuken.
De royaal opgezette living straalt comfort en licht uit dankzij de grote raampartijen aan de voorzijde. De open haard vormt het sfeervolle middelpunt van de ruimte, een heerlijke plek om tijdens koude dagen weg te kruipen met een kop warme chocolademelk. De living is afgewerkt met een nette laminaatvloer en strak gestuukte wanden en plafond, wat zorgt voor een rustige en verzorgde uitstraling.
Doorlopend naar achteren tref je aan de linkerzijde een charmant nisje met boekenkast. Vanuit hier heb je via een glazen staallook deur toegang tot het tussenportaal, met het volledig betegelde toilet en de trapopgang naar de eerste verdieping.
Keuken
Aan de tuinzijde wacht de echte blikvanger: een prachtige keuken met spoeleiland. Het eiland gaat naadloos over in de eettafel, waardoor koken en samen genieten perfect samenkomen.
De antracietkleurige wandopstelling is compleet uitgerust met een 4-pits gaskookplaat, afzuigkap, combi-oven, vaatwasser (2022), een koelkast-diepvriescombinatie en volop kastruimte. Daarnaast is het spoel-eiland eveneens voorzien van extra opbergruimte.
Een extra fijne bijkomstigheid is de praktische trapkast, perfect om al je voorraad netjes op te bergen. Wel zo handig!
Kortom: een heerlijke plek om urenlang te koken en ondertussen gezellig bij te praten met je gasten aan de eettafel. Wie nodig jij straks als eerste uit om hier te komen borrelen?
In het eetkamergedeelte gaat de laminaatvloer, die nagenoeg over de gehele begane grond ligt, naadloos over. Onder het kookgedeelte ligt een antracietkleurige tegelvloer, wat een mooie, warme mix in de ruimte creëert. De wanden en plafonds zijn daarnaast strak en neutraal afgewerkt, waardoor de leefruimte rustig en verzorgd oogt.
Genoeg over de begane grond! Vanuit de keuken stap je zo het overdekte terras op. Maar voordat we dat doen, nemen we je eerst mee naar de twee verrassende verdiepingen van deze woning.
Eerste verdieping
Je leeft dan misschien wel het meest op de begane grond, maar je hebt ook een fijne slaapkamer nodig waar je tot rust komt en je terug kunt trekken. Bof jij even, want je hebt hier keuze genoeg! De verdieping van bijna 50 m² is praktisch ingedeeld met drie (ruime) slaapkamers en een neutrale badkamer.
Alle vertrekken op deze verdieping komen samen op de royale overloop, die een open en prettige indruk geeft. Een extra pluspunt is de vaste trap naar de tweede verdieping.
Kortom: een fijne verbindingsruimte die meteen de toon zet voor de rest van de verdieping! De overloop is afgewerkt met een nette laminaatvloer, neutrale wanden en een strak plafond.
Slaapkamers
Op de eerste verdieping bevinden zich drie comfortabele slaapkamers, elk met een eigen formaat maar met eenzelfde afwerking. De kamers zijn o.a. voorzien van een doorlopende, warme laminaatvloer, een neutrale wand- en plafondafwerking en kunststof kozijnen met draai/-kiepfunctie en HR++ beglazing.
De masterbedroom is aan de tuinzijde gelegen en strekt zich over de volledige breedte van de woning. Met recht een echte masterbedroom, want zo ruim kom je ze maar zelden tegen. De kamer is voorzien van een royale inbouwkast, zodat je al je kleding netjes kunt opbergen en een airco waarmee je de ruimte zowel kunt koelen als verwarmen voor optimaal comfort.
Slaapkamers 2 en 3 bevinden zich aan de voorzijde van de woning en zijn ruim van opzet. Ze bieden voldoende ruimte voor een bed, kledingkast en zelfs een bureau. Eén van deze kamers wordt momenteel gebruikt als kantoorruimte, maar kan ook prima functioneren als slaapkamer of babykamer.
Badkamer
De badkamer is compact, maar zeer praktisch en van alle gemakken voorzien. De ruimte is fris en neutraal betegeld en beschikt over een modern badmeubel met wastafel en spiegelkast, een designradiator, een ligbad met douchefunctie en een hangcloset.
Kortom: een fijne badkamer om de dag goed te beginnen!
Tweede verdieping
Wil je nog een fijn voordeel van dit huis weten? Dat is de vierde en zeker niet de minste slaapkamer op de bovenste verdieping.
Deze verdieping is opgedeeld in een voorzolder- en achterzolder.
Voorzolder
De voorzolder is praktisch ingericht en afgewerkt met een linoleumvloer. Eén wand kan nog geheel naar eigen wens worden afgewerkt. Hier bevinden zich tevens de witgoedaansluitingen en de cv-ketel (Nefit, december 2025). Daarnaast is er volop ruimte voor extra kasten en het opbergen van spullen.
Slaapkamer
De achterzolder is een verrassend lichte en ruime (slaap)kamer, mede dankzij het grote dakvenster. De tweede verdieping is recent van binnenuit geïsoleerd en voorzien van nieuwe plafondplaten, wat zorgt voor extra comfort. Aan beide zijden van de ruimte is praktische bergruimte aanwezig onder de schuine kanten.
Momenteel wordt deze verdieping gebruikt als sportruimte, maar leent zich ook uitstekend als vierde slaapkamer, kantoor of hobbyruimte.
Tuin
En dan last but not least: de grote verrassing achter het huis! De heerlijke, diepe achtertuin ligt op het noordoosten en is onderhoudsvriendelijk aangelegd met kunstgras (2021) en vaste beplanting. De tuin beschikt over twee fijne terrassen: één achterin de tuin en een heerlijke overkapping direct aan het huis. Dé plek om tot in de late uurtjes te genieten van lange avonden, barbecues en gezellig samenzijn met vrienden en familie.
Achterin de tuin staat bovendien een praktische berging, ideaal voor extra opslag en het droog stallen van fietsen. De tuin is eenvoudig bereikbaar via een afsluitbare poort. Hoe fijn is dat?
Bijzonderheden
Locatie
Droom nog even verder over het huis, maar de ligging is vanzelfsprekend ook erg belangrijk. Een huis naar eigen smaak omtoveren is te doen, maar een ligging niet. Daarom moet die goed zijn én dat is de ligging van dit huis.
De woning ligt in een fijne kindvriendelijke woonomgeving op steenworp afstand van diverse basisscholen, een groot park, meerdere speeltuintjes, een fietscrossbaan en een kinderopvang. Tevens is Steenstraat 52 centraal gelegen t.o.v. de dorpskern van Eersel en de historische Markt met gezellige terrasjes. De dorpskern van Eersel beschikt over allerlei voorzieningen voor de dagelijkse behoeften.
Eindhoven is gemakkelijk via de uitvalswegen te bereiken. Een ideale locatie voor degene die bij ASML of op de HTC werkt.
Kenmerken
- Bouwjaar: 1979;
- Energielabel A
- Woonoppervlakte: 129 m²
- Gebouwgebonden buitenruimte 19 m²
- Externe bergruimte: 9 m²
- Perceeloppervlakte: 165 m²
- De gehele woning is voorzien van kunststof kozijnen met HR++ glas 2020 (m.u.v. dakraam en voordeur)
- Het woonhuis beschikt over spouwmuurisolatie
- Het dak is van binnenuit na-geïsoleerd.
Zie je jouw naam graag vermeld staan op het bordje naast de voordeur? Geef een belletje naar het kantoor en onze enthousiaste makelaar leidt jou graag rond.