Beschrijving
Een instapklare tweekapper aan de Groeneweg in Reusel met een speelveldje recht voor de deur.
Een fijne woning om in thuis te komen, lees snel verder en ontdek wat deze woning jou allemaal te bieden heeft.
Eenmaal binnen stap je een open living met een stijlvolle erker aan de voorzijde waar je heerlijk uitkijkt over het speelveldje. Aan de achterzijde vind je de open keuken die via de schuifpui en loopdeur direct in verbinding staat met de tuin.
Op de eerste verdieping vind je drie slaapkamers en een badkamer. De tweede verdieping biedt nog extra opslagruimte, wasruimte én een vierde slaapkamer met een groot dakkapel!
De achtertuin is het afgelopen jaar volledig gerenoveerd en dat zie je dan ook direct terug. Daarnaast beschikt de woning over een eigen oprit en een royale garage mét bergzolder.
Terwijl je hier heerlijk woont, sta je toch binnen drie minuten in het bruisende centrum van Reusel, ideaal voor je dagelijkse boodschappen of een lekker avondje uit.
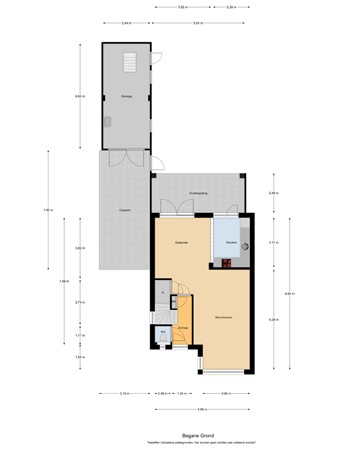
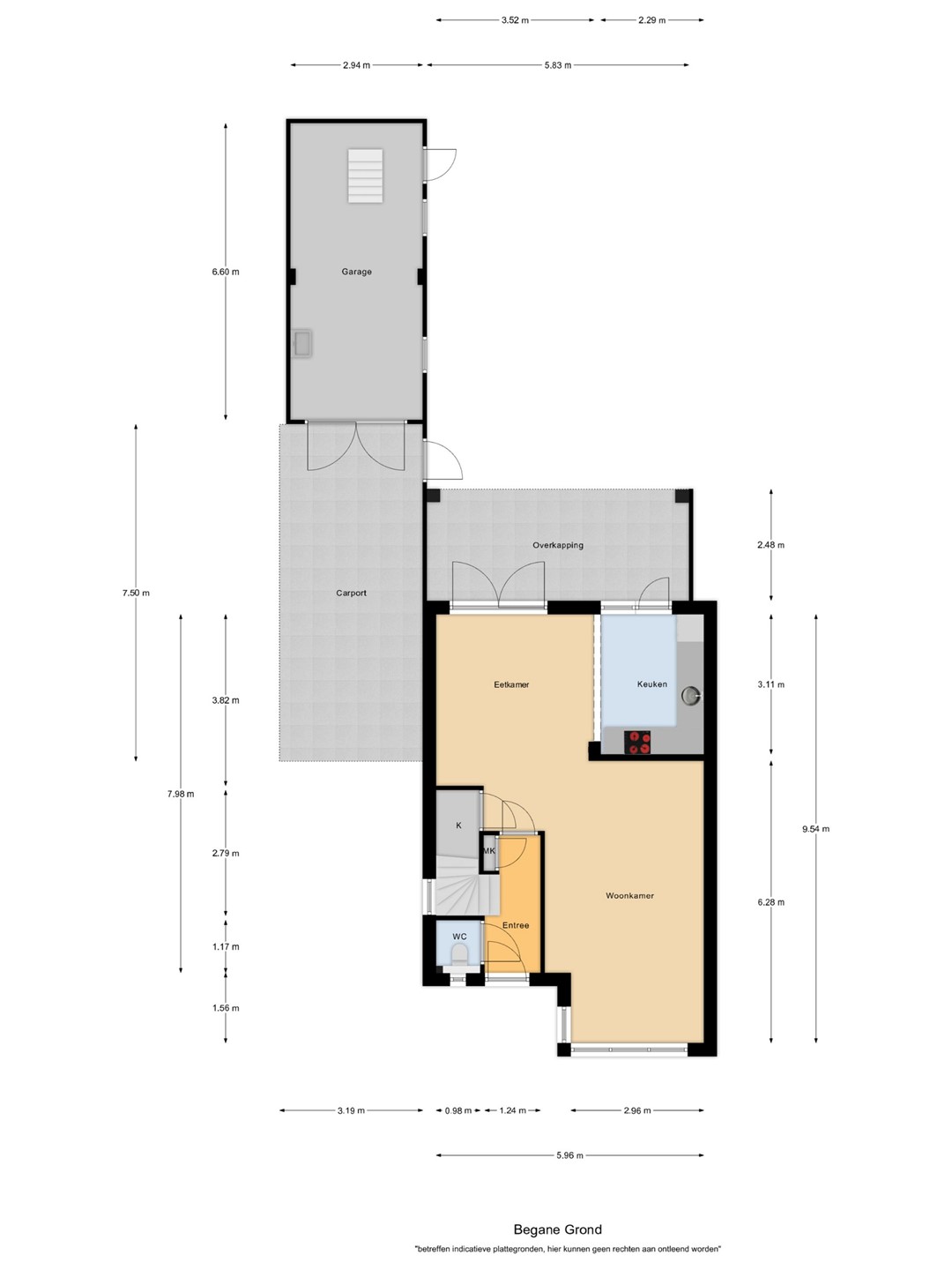
Indeling
Entree
Zodra je de voordeur binnenstapt wordt je warm onthaald met een nette pvc- houtlook vloer en neutrale wand- en plafondafwerking. Dankzij het grote raampartij in de gang is er volop daglicht. Vanuit hier heb je toegang tot de meterkast, het volledig betegelde toilet die voorzien is van een hangcloset, de vaste trapopgang naar boven en de doorgang naar de woonkamer.
Woonkamer
Dit is zo'n ruimte waar je meteen zin krijgt om neer te ploffen. Aan de voorzijde vind je een heerlijke zithoek met stijlvolle erker waar het zonlicht fijn naar binnen valt en je een mooi uitzicht hebt over het speelveld aan de voorzijde. Aan de achterzijde bevindt zich de eethoek waar je met gemak een royale eettafel kunt plaatsen en heerlijk kunt genieten met vrienden en familie. Middels schuifpui is de heerlijke achtertuin bereikbaar wat een fijne plek is voor het hele gezin. De eethoek loopt bovendien naadloos over in de open keuken. De woonkamer is voorzien van een nette pvc-houtlook vloer, neutrale wandafwerking en een stucwerk plafond met sierlijsten.
Keuken
De ruime inbouwkeuken is in een praktisch hoekopstelling geplaatst en voorzien van wit kastwerk en een donker werkblad. De keuken is voorzien van een combi-oven, 4- pits inductiekookplaat, afzuigkap, vaatwasser en koelkast. Alles wat je nodig hebt om een heerlijke maaltijd te bereiden. Dankzij de vele kasten zowel boven als onder is er altijd voldoende ruimte voor al je voorraad en keukengerei. Vanuit hier stap je zo de tuin in voor koffie in de ochtendzon.
Eerste verdieping
Middels vaste trap te bereiken overloop met toegang tot drie slaapkamers, badkamer, inbouwkast en vaste trapopgang naar tweede verdieping. De gehele eerste verdieping is afgewerkt met een laminaatvloer, stucwerkwanden en een mdf- plafond.
Slaapkamers
Twee slaapkamers zijn gelegen aan de achterzijde van de woning, waaronder de masterbedroom die royaal is van opzet en voldoende plek biedt voor een tweepersoonsbed en een kast. Ook beschikt deze kamer over een dubbele inbouwkast en hardhouten kozijnen met isolerende beglazing voorzien van horren en rolluiken.
De tweede slaapkamer is ook gelegen aan de achterzijde en biedt voldoende plaats voor een bed, kast en een bureau. Ook is deze kamer voorzien van hardhouten kozijnen met isolerende beglazing met horren en rolluiken. Tevens is het plafond van deze kamer afgelopen maand compleet vernieuwd en voorzien van nieuw schilderwerk op de wanden.
Slaapkamer drie is gelegen aan de voorzijde en biedt ruimte voor een bed en een bureau. Deze kamer beschikt over een dubbele inbouwkast, ideaal voor de opslag van jouw kleding. Via de grote raampartij aan de voorzijde schijnt er volop daglicht binnen en middels de deur heb je toegang tot het platdak van de erker. Een mooi uitzicht over het speelveld aan de voorzijde. Deze kamer is voorzien van kunststof kozijnen met HR++ beglazing met horren en rolluiken.
Badkamer
De badkamer is volledig betegeld en voorzien van een inloopdouche met glazendeur, een hangcloset en een badmeubel met wastafel. Er is voldoende kastruimte voor al je handdoeken en toiletspullen in op te bergen. Met wat extra aanpassingen maak jij hier je droombadkamer waar je heerlijk kunt ontspannen na een lange dag.
Tweede verdieping
Middels vaste trap bereik je de verrassend ruimte tweede verdieping. Deze verdieping is opgedeeld in een voor- en achterzolder. De voorzolder biedt volop ruimte voor extra opslag en hier vind je de witgoedaansluitingen en de nieuwe Nefit CV-ketel uit 2025. Twee raampartijen aan de zijkant van de woning zorgen voor veel daglicht en ventilatie, ideaal om hier de was te laten drogen.
De achterzolder is een royale ruimte dankzij het grote dakkapel dat veel daglicht binnenlaat. Het is de perfecte plek om een extra slaapkamer of werkruimte te creëren. Het dakkapel zorgt voor voldoende daglicht en is ook voorzien van elektrische rolluiken, zodat je heerlijk in het donker kunt slapen. Onder de schuine kant zijn nog handige bergkasten gerealiseerd.
Tuin
Voortuin
De voortuin is volledig aangelegd met diverse groene beplanting en beschikt over een looppad naar de voordeur. Aan de linkerzijde van de woning bevindt zich een royale oprit met carport die plek biedt voor meerdere auto’s en een looppoort die direct toegang geeft tot de achtertuin.
Achtertuin
De achtertuin is volledig vernieuwd en een echte fijne plek om te genieten. Direct bij binnenkomst stap je onder de overkapping over de gehele breedte van de woning. Een heerlijke plek om lekker te genieten met vrienden en familie. Verder is de tuin voorzien van een strak gazon, nieuwe bestrating, een zandbak voor de kinderen en diverse plantenbakken met sfeervolle verlichting. In deze zonnige tuin op het zuiden heb je door grote leibomen optimale privacy. Ook beschikt de tuin nog over een luifel welke aan de garage-zijde gemonteerd is.
Garage
De royale garage is bereikbaar vanuit de tuin en biedt volop ruimte, ideaal voor de handige klusser, hobbyist of gewoon als opslag. Bovenin vind je een praktische bergzolder waar je makkelijk je seizoensspullen kwijt kunt. Verder beschikt de garage over dubbele openslaande deuren, een uitstortgootsteen met kraan, aparte stoppenkast, radiator en voldoende stopcontacten. Kortom een fijne en royale garage waar je alle kanten mee op kunt!
Bijzonderheden
- Bouwjaar 1969
- Fraaie tweekapper
- Woonoppervlakte 125 m²
- Perceeloppervlakte 248 m²
- C.V. combi ketel uit 2025
- Energielabel A in aanvraag
- Kunststof + hardhouten kozijnen met isolerende beglazing (deels HR++)
- Grotendeels voorzien van rolluiken
- Royale overkapping achtertuin
- Grote garage met carport en bergzolder
- 2007 erker geplaatst
- 2008 dak vernieuwd en dakisolatie toegepast
- 2009 bergzolder geplaatst op de garage
Verbeteringen door de jaren heen:
- Nieuwe pvc- vloer begane grond 2016
- Volledig gerenoveerde achtertuin 2021
- 12 zonnepanelen 2022
- Voortuin gerenoveerd 2023
- Slaapkamer achterzijde voorzien van nieuw plafond 2025
Mis deze kans niet en maak een afspraak voor een bezichtiging om alles zelf te ervaren!